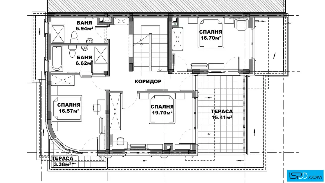
План на първи етаж

Еднофамилна къща в гр. Червен бряг







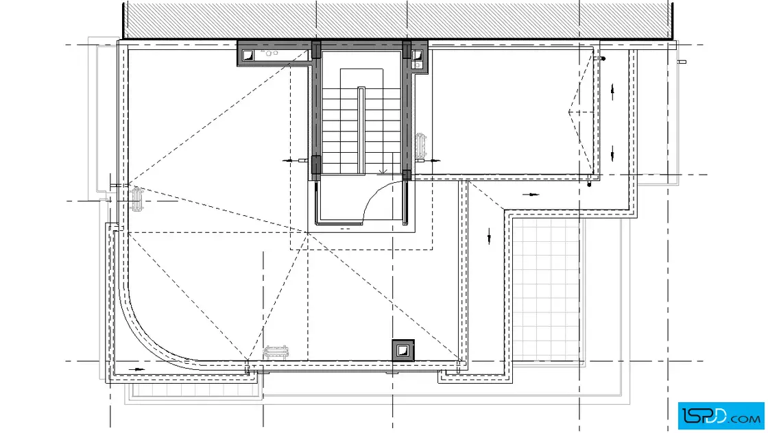
Това е проект на аристократична къща със стилно излъчване и функционално разпределение на нивата. Хоризонталните фасадни кантове от варовик създават изтънчен детайл, характерен за една градска къща. Разчупената архитектура допринася за елегантното излъчване на къщата. На първи етаж са разположени входно антре, просторна дневна с кът за камина, трапезария с маса за 10 човека, кухня с островна мебел, спалня със собствена баня, общ санитарен възел за нивото, мокро помещение и котелно. Просторни витрини отварят дневната зона към двора и създават визуален мост между интериора и екстериора. На втория етаж са проектирани три спални и две бани (едната, от които е индивидуална за ъгловата спалня). Развита е просторна тераса към двора, която е достъпна и от коридора. Стълбищната клетка стига до покривна тераса на трето ниво, от където обитателите могат да се насладят на откриващата се панорама.
Конструкцията е монолитна стоманобетонна. Ограждащите стени са тухлени с външна топлоизолация. Фасадното оформление включва цветна минерална мазилка „Baumit” и декоративни детайли от варовик. Хоризонтални ивици от варовик членят фасадата и създават усещането за легнала къща. Дограмата е PVC със стъклопакет от нискоемисионно стъкло. Покривът е плосък – използваема тераса.
Площ на първо ниво: 132 кв.м.
Площ на второ ниво: 123 кв.м.
Площ на трето ниво: 16 кв.м.
Подробен 3D модел на сградата, който изяснява формата и функцията в пълнота още в етапа на проектиране
Бързина на проектирането без компромис с качеството
Анализ на различни варианти и опции и визуализирането им още в начален етап
Функционални планове
Модерен архитектурен софтуер, който минимизира възможните грешки

Визуализациите са илюстративни
Представените изображения са компютърно генерирани фотореалистични образи на сградата, които показват идеята на архитекта. Те визуализират една от многото възможности за завършване на фасадата на сградата. Тяхната основна цел е да изобразят къщата в околната среда по възможно най-реалистичния начин, за да може обитателите да възприемат сградата още преди тя да бъде построена. Цветовете и текстурите на реално изпълнената сграда може да се различават от компютърните изображения.
Фасадните материали могат да бъдат променяни
Визуализациите изобразяват идеята на архитекта и неговото желание да постигане завършен и естетичен образ използвайки конкретни материали по фасадата. Въпреки това, красотата на сградата е строго субективна и затова външната визия може да бъде редактирана според желанията и предпочитанията на възложителите. Всички цветове и материали могат да бъдат променяни, заменяни или премахнати според конкретните нужди.
Всички планове и изображения са предмет на авторско право
Представените визуализации и планове са авторски продукт и плод на архитектурния труд на екипа проектанти на “Ай ЕС Пи Дигитален Дизайн” ООД. Те са изключителна интелектуална собственост на фирмата. На основание член 35 от Закона за авторското право и сродните му права използването на което и да е изображение за търговски, маркетингови и други цели, без изричното писмено съгласие на фирма “Ай ЕС Пи Дигитален Дизайн” ООД е строго забранено.
Коментари и Въпроси