План на подземен етаж

Еднофамилна къща в гр. София













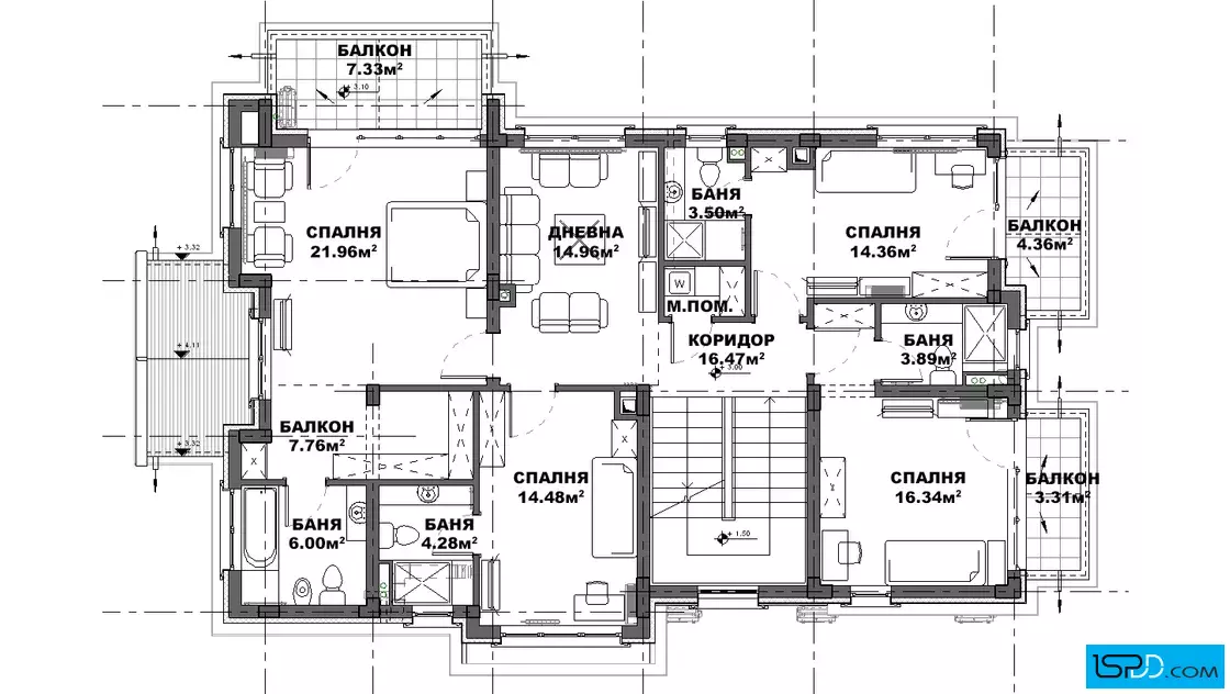
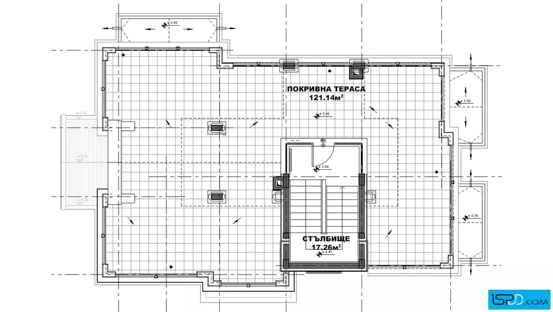
Това е проект на луксозна градска къща с класическо излъчване и визия. Декоративни хоризонтални кантове по фасадата членят къщата във височина и по този начин тя ляга по-хармонично на терена. Елегантни варовикови кантове са проектирани около прозорците и витрините. Те създават деликатен детайл по фасадата. Целият приземен етаж е решен във варовикова облицовка, която със своята рафинирана визия допълва градското усещане за къщата. Жилищната сграда е решена на четири етажа – едно подземно ниво и три надземни. Първо ниво е почти изцяло е подземно. До него се стига по вътрешно и по външно стълбище за по-лесно обслужване. Нивото съдържа фитнес, зала, мазе, котелно, склад и тоалетна. Фитнесът е естествено осветен посредством прозоречен шлиц. Приземното второ ниво съдържа входно антре, просторна дневна, трапезария, кухня с килер към нея, две спални, баня и тоалетна. Дневната, трапезарията и кухнята са решени еднопространствено. В дневната е проектиран кът за камина. В кухнята е проектирана островна мебел. Всички помещения имат големи прозорци или витрини, като по този начин обитателите ще могат да се възползват максимално от естествената дневна светлина. Представителна стълба от дневната води към трето ниво, което съдържа компактна дневна, четири спални, четири бани, дрешник и мокро помещение. Пред три от спалните са проектирани балкони, които са покрити от козирки. Четвърто ниво представлява покривна тераса. Тя е отчасти покрита с плоча и дървен скатен покрив.
Конструкцията е монолитна стоманобетонна. Ограждащите стени са тухлени с външна топлоизолация. Фасадното оформление включва каменна облицовка от варовикови плочи и бяла и цветна минерална мазилка „Baumit”. Дограмата е PVC със стъклопакет от нискоемисионно стъкло. Покривът е плосък – използваема покривна тераса, която е частично покрита от четирискатен покрив.
Площ на подземно ниво: 147 кв.м.
Площ на първо ниво: 151 кв.м.
Площ на второ ниво: 173 кв.м.
Площ на трето ниво: 145 кв.м.
Подробен 3D модел на сградата, който изяснява формата и функцията в пълнота още в етапа на проектиране
Бързина на проектирането без компромис с качеството
Анализ на различни варианти и опции и визуализирането им още в начален етап
Функционални планове
Модерен архитектурен софтуер, който минимизира възможните грешки

Визуализациите са илюстративни
Представените изображения са компютърно генерирани фотореалистични образи на сградата, които показват идеята на архитекта. Те визуализират една от многото възможности за завършване на фасадата на сградата. Тяхната основна цел е да изобразят къщата в околната среда по възможно най-реалистичния начин, за да може обитателите да възприемат сградата още преди тя да бъде построена. Цветовете и текстурите на реално изпълнената сграда може да се различават от компютърните изображения.
Фасадните материали могат да бъдат променяни
Визуализациите изобразяват идеята на архитекта и неговото желание да постигане завършен и естетичен образ използвайки конкретни материали по фасадата. Въпреки това, красотата на сградата е строго субективна и затова външната визия може да бъде редактирана според желанията и предпочитанията на възложителите. Всички цветове и материали могат да бъдат променяни, заменяни или премахнати според конкретните нужди.
Всички планове и изображения са предмет на авторско право
Представените визуализации и планове са авторски продукт и плод на архитектурния труд на екипа проектанти на “Ай ЕС Пи Дигитален Дизайн” ООД. Те са изключителна интелектуална собственост на фирмата. На основание член 35 от Закона за авторското право и сродните му права използването на което и да е изображение за търговски, маркетингови и други цели, без изричното писмено съгласие на фирма “Ай ЕС Пи Дигитален Дизайн” ООД е строго забранено.
Коментари и Въпроси