План на подземен етаж

Еднофамилна къща в гр. София









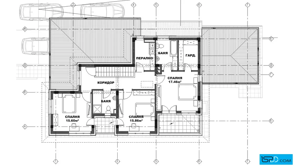
Това е проект на луксозна градска къща на три етажа в традиционен стил. Използваните материали по фасадата са каменна облицовка от плочи гнайс, дървена облицовка и бяла минерална мазилка. Дървени летви обкантват прозорците и фасадните плоскости като така допринасят за традиционния облик на къщата. Парапетите на къщата също са дървени, за да съответстват на традиционния облик. Поради денивелацията на терена първо ниво е полу-подземно. В него са развити складови помещения, ателие и санитарен възел. Второ ниво съдържа входно антре, просторна дневна, трапезария и кухня решени еднопространствено, спалня, баня, килер и гараж за една кола. В дневната е развит кът за камина. Пред кухнята е проектирана покрита веранда с място за барбекю. На трето ниво са разположени три спални, две бани, перално помещение и гардеробно. Два балкона, обърнати към двора, обслужват спалните.
Конструкцията е монолитна стоманобетонна. Ограждащите стени са тухлени с външна топлоизолация. Дограмата е PVC със стъклопакет от нискоемисионно стъкло. Покривът е многоскатен покрит с бетонни керемиди “Bramac”.
Площ на полу-подземно ниво: 158 кв.м.
Площ на първо ниво: 142 кв.м.
Площ на второ ниво: 130 кв.м.
Подробен 3D модел на сградата, който изяснява формата и функцията в пълнота още в етапа на проектиране
Бързина на проектирането без компромис с качеството
Анализ на различни варианти и опции и визуализирането им още в начален етап
Функционални планове
Модерен архитектурен софтуер, който минимизира възможните грешки

Визуализациите са илюстративни
Представените изображения са компютърно генерирани фотореалистични образи на сградата, които показват идеята на архитекта. Те визуализират една от многото възможности за завършване на фасадата на сградата. Тяхната основна цел е да изобразят къщата в околната среда по възможно най-реалистичния начин, за да може обитателите да възприемат сградата още преди тя да бъде построена. Цветовете и текстурите на реално изпълнената сграда може да се различават от компютърните изображения.
Фасадните материали могат да бъдат променяни
Визуализациите изобразяват идеята на архитекта и неговото желание да постигане завършен и естетичен образ използвайки конкретни материали по фасадата. Въпреки това, красотата на сградата е строго субективна и затова външната визия може да бъде редактирана според желанията и предпочитанията на възложителите. Всички цветове и материали могат да бъдат променяни, заменяни или премахнати според конкретните нужди.
Всички планове и изображения са предмет на авторско право
Представените визуализации и планове са авторски продукт и плод на архитектурния труд на екипа проектанти на “Ай ЕС Пи Дигитален Дизайн” ООД. Те са изключителна интелектуална собственост на фирмата. На основание член 35 от Закона за авторското право и сродните му права използването на което и да е изображение за търговски, маркетингови и други цели, без изричното писмено съгласие на фирма “Ай ЕС Пи Дигитален Дизайн” ООД е строго забранено.
Коментари и Въпроси