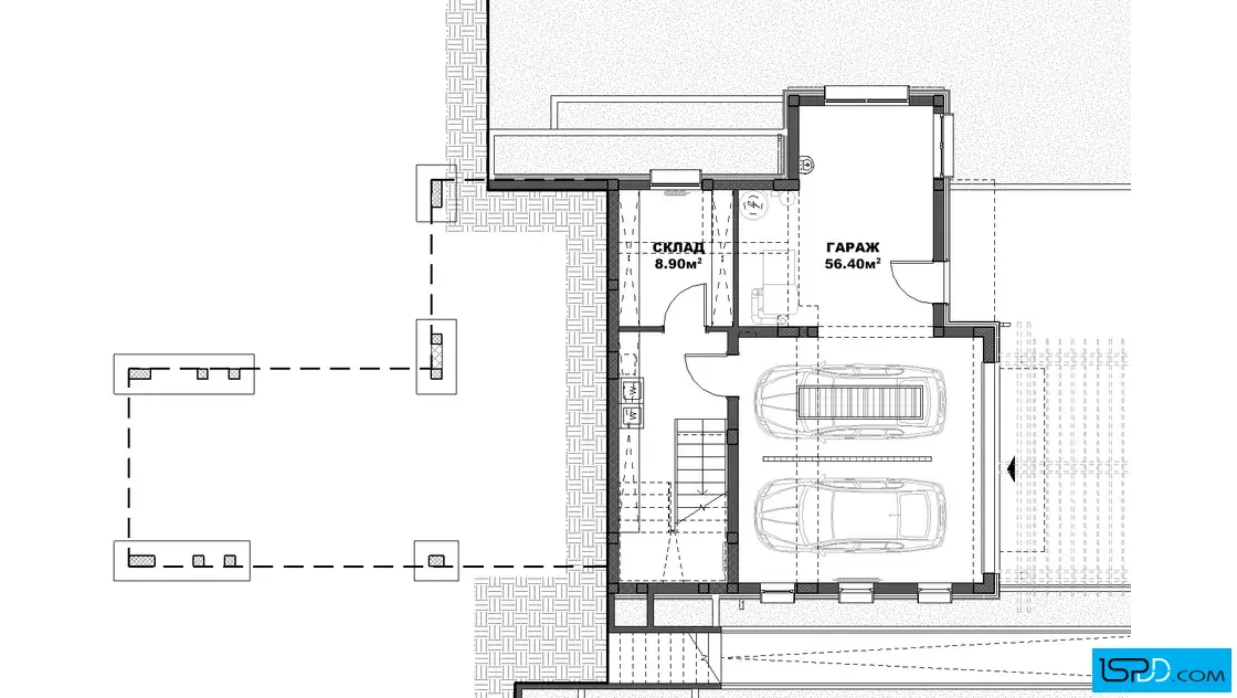
План на подземен етаж

Еднофамилна къща в с. Дивотино








Това е проект на модерна еднофамилна къща, разположена в пасторална среда. Фасадата е изпълнена с каменна облицовка и два цвята мазилка. Основна роля имат дървените детайли около прозорците, дървените перголи, както и дървените вертикални слънцезащитни елементи. Те приобщават къщата към околната среда. Основно предизвикателство при проектирането на тази сграда е овладяването на стръмния терен в комбинация с тесен и дълъг парцел. Къщата е двуетажна като първо ниво е полу-вкопано в земята. То съдържа гараж за две коли и склад. Над рампата за гаража е проектирана дървена пергола. На второ ниво са проектирани входно антре, дневна с кът за камина, трапезария, кухня, две спални, кабинет, две бани и гардеробно. Родителската спалня има собствена баня и дрешник. Предвидено е мащабно остъкляване към двора, което да свърже интериора на къщата с верандата. При проектирането на къщата е спазвано правилото да няма помещение без прозорец като по този начин обитателите ще се възползват максимално от дневната светлина. В допълнение три покривни прозореца „Velux” вкарват светлина във вътрешността на къщата. В двора е проектирана лятна кухня с кът за барбекю и хранене на открито.
Конструкцията на къщата е монолитна стоманобетонна. Ограждащите стени са тухлени с външна топлоизолация. Покривът на сградата е четирискатен, покрит с керемиди. Макар и ситуирана извън града, къщата е проектирана да покрие всички съвременни нужди и изисквания на своите обитатели.
Площ на първо ниво: 95 кв.м.
Площ на второ ниво: 177 кв.м.
Подробен 3D модел на сградата, който изяснява формата и функцията в пълнота още в етапа на проектиране
Бързина на проектирането без компромис с качеството
Анализ на различни варианти и опции и визуализирането им още в начален етап
Функционални планове
Модерен архитектурен софтуер, който минимизира възможните грешки

Визуализациите са илюстративни
Представените изображения са компютърно генерирани фотореалистични образи на сградата, които показват идеята на архитекта. Те визуализират една от многото възможности за завършване на фасадата на сградата. Тяхната основна цел е да изобразят къщата в околната среда по възможно най-реалистичния начин, за да може обитателите да възприемат сградата още преди тя да бъде построена. Цветовете и текстурите на реално изпълнената сграда може да се различават от компютърните изображения.
Фасадните материали могат да бъдат променяни
Визуализациите изобразяват идеята на архитекта и неговото желание да постигане завършен и естетичен образ използвайки конкретни материали по фасадата. Въпреки това, красотата на сградата е строго субективна и затова външната визия може да бъде редактирана според желанията и предпочитанията на възложителите. Всички цветове и материали могат да бъдат променяни, заменяни или премахнати според конкретните нужди.
Всички планове и изображения са предмет на авторско право
Представените визуализации и планове са авторски продукт и плод на архитектурния труд на екипа проектанти на “Ай ЕС Пи Дигитален Дизайн” ООД. Те са изключителна интелектуална собственост на фирмата. На основание член 35 от Закона за авторското право и сродните му права използването на което и да е изображение за търговски, маркетингови и други цели, без изричното писмено съгласие на фирма “Ай ЕС Пи Дигитален Дизайн” ООД е строго забранено.
Коментари и Въпроси