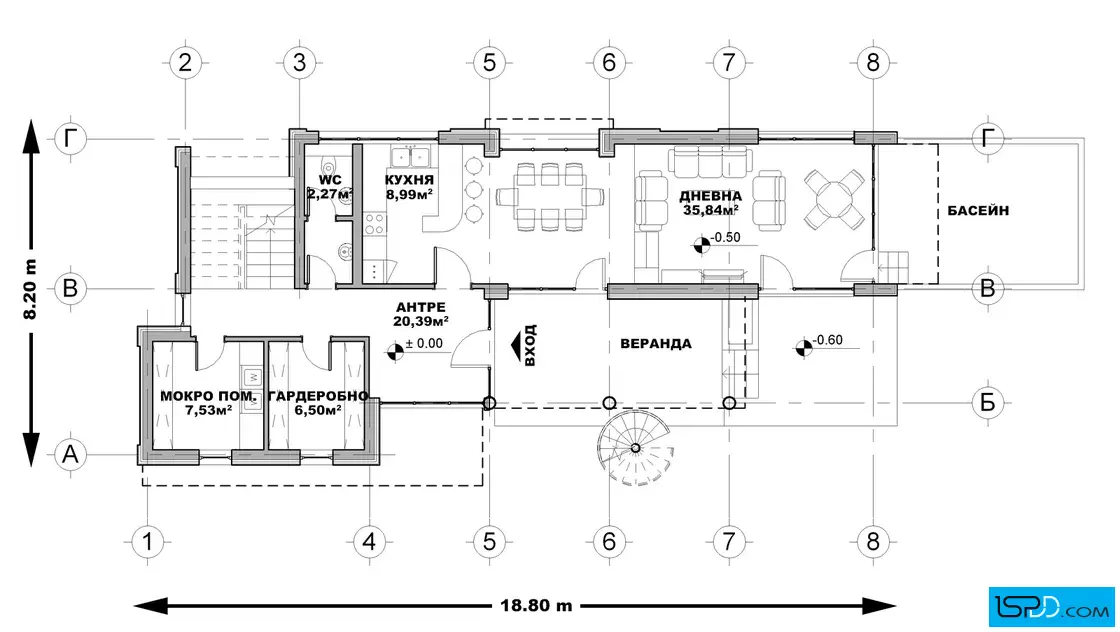
План на първи етаж

Еднофамилна къща в гр. Черноморец







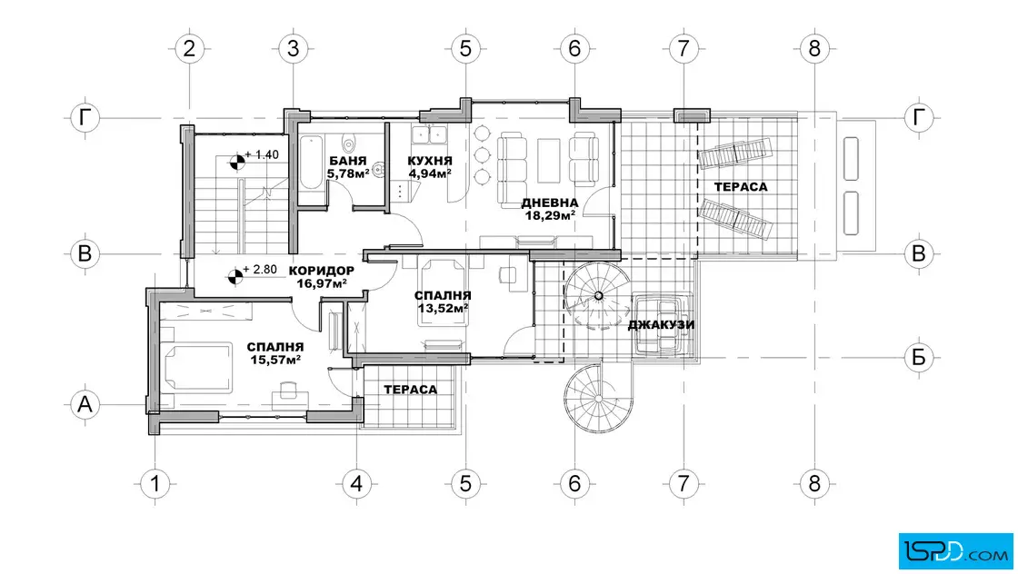
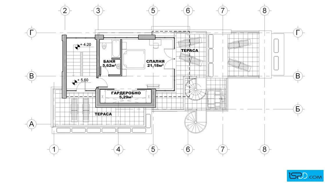
Това е проект на луксозна морска къща с модерна визия. Характерно при нея е взаимодействието и преплитането на обемите и фасадните плоскости. Харизмата на къщата е в умелото съчетаване на каменната облицовка от варовикови плочи, на дървената облицовка и на белите изчистени обеми. Сградата сякаш се разгражда и отваря към морето. Къщата е триетажна като на първо ниво са развити входно антре, просторна дневна, трапезария, кухня, гардеробно, тоалетна и склад. Големи витрини отварят дневната към двора и към басейна. В допълнение на вътрешната стълба елегантна външна вита стълба свързва приземния етаж с второ ниво. На втория етаж са разположени малка дневна, две спални и баня. Проектирани са просторни тераси с поглед към морето. На третия етаж е разположена главната спалня със самостоятелна баня и дрешник към нея.
Конструкцията на къщата е монолитна стоманобетонна. Ограждащите стени са тухлени с външна топлоизолация. Покривът на сградата е плосък в тон с визията на сградата. Стъпаловидното отстъпване на къщата на всеки етаж допринася за хармоничното и вписване в дворната среда. Макар и на три етажа сградата не доминира в двора.
Площ на първо ниво: 99 кв.м.
Площ на второ ниво: 125 кв.м.
Площ на второ ниво: 88 кв.м.
Подробен 3D модел на сградата, който изяснява формата и функцията в пълнота още в етапа на проектиране
Бързина на проектирането без компромис с качеството
Анализ на различни варианти и опции и визуализирането им още в начален етап
Функционални планове
Модерен архитектурен софтуер, който минимизира възможните грешки

Визуализациите са илюстративни
Представените изображения са компютърно генерирани фотореалистични образи на сградата, които показват идеята на архитекта. Те визуализират една от многото възможности за завършване на фасадата на сградата. Тяхната основна цел е да изобразят къщата в околната среда по възможно най-реалистичния начин, за да може обитателите да възприемат сградата още преди тя да бъде построена. Цветовете и текстурите на реално изпълнената сграда може да се различават от компютърните изображения.
Фасадните материали могат да бъдат променяни
Визуализациите изобразяват идеята на архитекта и неговото желание да постигане завършен и естетичен образ използвайки конкретни материали по фасадата. Въпреки това, красотата на сградата е строго субективна и затова външната визия може да бъде редактирана според желанията и предпочитанията на възложителите. Всички цветове и материали могат да бъдат променяни, заменяни или премахнати според конкретните нужди.
Всички планове и изображения са предмет на авторско право
Представените визуализации и планове са авторски продукт и плод на архитектурния труд на екипа проектанти на “Ай ЕС Пи Дигитален Дизайн” ООД. Те са изключителна интелектуална собственост на фирмата. На основание член 35 от Закона за авторското право и сродните му права използването на което и да е изображение за търговски, маркетингови и други цели, без изричното писмено съгласие на фирма “Ай ЕС Пи Дигитален Дизайн” ООД е строго забранено.
Коментари и Въпроси