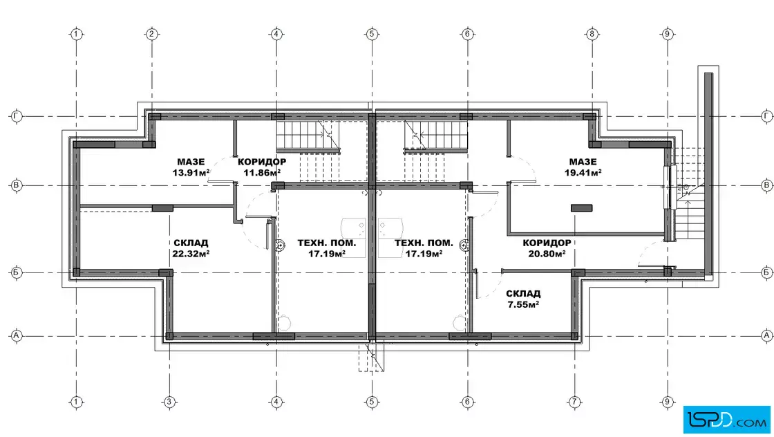
План на подземен етаж

Двуфамилна къща в гр. Варна
| Етажи | Нето | Бруто |
|---|---|---|
| Подземен етаж | 130.23 кв.м. | 152.97 кв.м. |
| Първи етаж | 130.38 кв.м. | 158.91 кв.м. |
| Втори етаж | 150.75 кв.м. | 184.93 кв.м. |
| Трети етаж | 103.74 кв.м. | 130.17 кв.м. |
| Общо: | 515.1 кв.м. | 626.98 кв.м. |








Това е проект на двуфамилна къща със съвременна визия. Обемите следват терена и създават динамичен облик на сградата. Използвани са светла мазилка, обработен камък (травертин) и HPL панели с цвят „дърво“. Предложен е тъмен цвят за покрива, който се съчетава с графитения цвят на дограмата и допрнася за модерното звучене на къщата. В жилищната сграда са обособени две жилища. Тя е решена на един подземен, два надземни и един подпокривен етажи, като двете половини са разместени във височина с 1.30м поради денивелацията на терена.
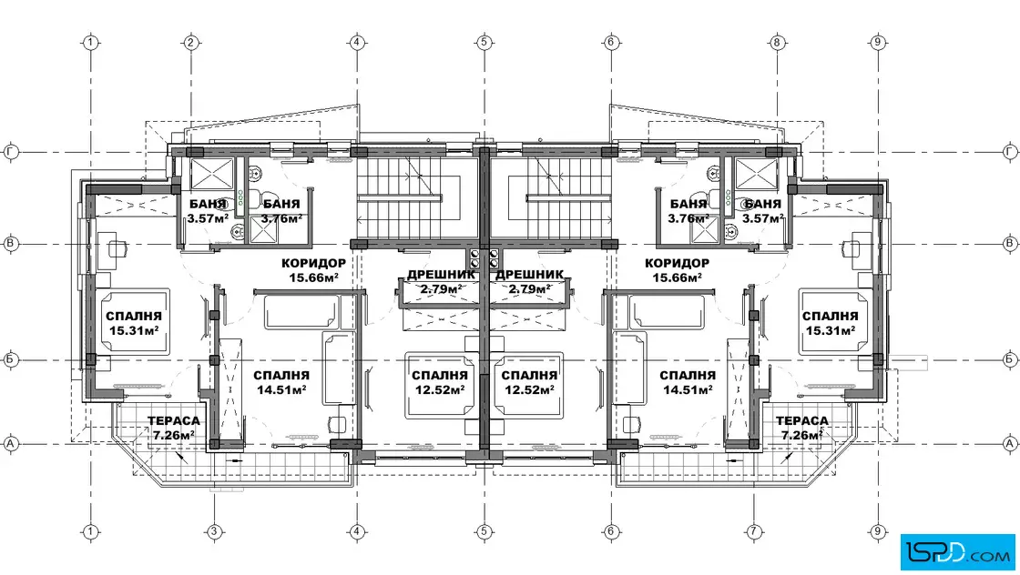
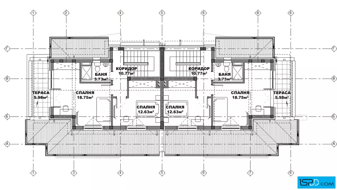
В подземният етаж на всяко от двете жилища са проектирани по един склад/котелно, склад и мазе. Първи етаж на всяко от двете жилища съдържа входно антре, дневна, трапезария, кухня, склад и баня. В дневните е проектиран кът за камина. Всички помещения имат големи прозорци или витрини за максимално използване на естествената дневна светлина. Вторият етаж на всяко от двете жилища съдържа по три спални, две бани и гардеробно. Едната от баните във всяко жилище е индивидуална за едната спалня, а другата е обща за етажа. От две от спалните във всяко жилище се излиза на обща покрита тераса на юг. В подпокривният етаж на всяко от двете жилища са проектирани по две спални и баня. От едната спалня във всяко жилище се излиза към покрита тераса на изток и запад.
Конструкцията е монолитна стоманобетонна. Ограждащите стени са тухлени с външна топлоизолация. Дограмата е PVC със стъклопакет от нискоемисионно стъкло. Покривът е четирискатен покрит с керамични керемиди “Tondach”.
Подробен 3D модел на сградата, който изяснява формата и функцията в пълнота още в етапа на проектиране
Бързина на проектирането без компромис с качеството
Анализ на различни варианти и опции и визуализирането им още в начален етап
Функционални планове
Модерен архитектурен софтуер, който минимизира възможните грешки

Визуализациите са илюстративни
Представените изображения са компютърно генерирани фотореалистични образи на сградата, които показват идеята на архитекта. Те визуализират една от многото възможности за завършване на фасадата на сградата. Тяхната основна цел е да изобразят къщата в околната среда по възможно най-реалистичния начин, за да може обитателите да възприемат сградата още преди тя да бъде построена. Цветовете и текстурите на реално изпълнената сграда може да се различават от компютърните изображения.
Фасадните материали могат да бъдат променяни
Визуализациите изобразяват идеята на архитекта и неговото желание да постигане завършен и естетичен образ използвайки конкретни материали по фасадата. Въпреки това, красотата на сградата е строго субективна и затова външната визия може да бъде редактирана според желанията и предпочитанията на възложителите. Всички цветове и материали могат да бъдат променяни, заменяни или премахнати според конкретните нужди.
Всички планове и изображения са предмет на авторско право
Представените визуализации и планове са авторски продукт и плод на архитектурния труд на екипа проектанти на “Ай ЕС Пи Дигитален Дизайн” ООД. Те са изключителна интелектуална собственост на фирмата. На основание член 35 от Закона за авторското право и сродните му права използването на което и да е изображение за търговски, маркетингови и други цели, без изричното писмено съгласие на фирма “Ай ЕС Пи Дигитален Дизайн” ООД е строго забранено.
Коментари и Въпроси