План на първи етаж

Готов проект на къща 48





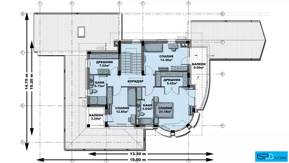
Този готов проект на луксозна градска къща съчетава в себе си модерна визия и елегантни форми. Овалните обеми създават акцент и подчертават главните помещения в сградата. Грубата каменна зидария контрастира на елегантните плоскости на дървената облицовка от HPL панели. Финните детайли от варовик около прозорците и витрините, както и хоризонталното членение на каменните стени допринася за богатството на визията и за нейното очарование. Къщата е решена на два етажа като на първо ниво са проектирани входно антре, просторна дневна, овална трапезария, кухня с островна мебел, две спални, баня, склад, килер, котелно и гараж за една кола. Оформен е кът за камина в дневната. Просторна покрита трапезария предоставя прекрасен поглед към двора. На втория етаж са проектирани три спални, два дрешника и две бани. Главната спалня има самостоятелна баня и дрешник. Развити са два балкона, които обслужват всички спални. Основен принцип при проектирането на къщата е бил отварянето на помещенията към двора и околната среда посредством по-площно остъкляване. Търсено е проникване в дълбочина на естествената светлина.
Конструкцията на къщата е монолитна стоманобетонна. Ограждащите стени са тухлени с външна топлоизолация. Фасадното оформление включва каменна облицовка от гнайс, цветна минерална мазилка „Baumit” и дървена облицовка. Дограмата е PVC със стъклопакет от нискоемисионно стъкло. Покривът е многоскатен покрит с бетонни керемиди “Bramac”.
Минималното лице на парцела към улицата е:
за жилищно строителство - 21м
за вилно строителство – 23м
ПРОМЕНИ /МОДИФИКАЦИИ/ ПО ПРОЕКТА:
Важно: Ние сме преди всичко архитекти, а не търговци и проектите, които предлагаме не са „готов артикул”, разпечатан и подреден на рафт, чакащ купувачи. Всеки един „готов проект” е отправна точка към Вашия бъдещ дом. Така подготвени проектите позволяват да се променя вида и начина на отопление, да се добавят допълнителни инсталации и системи като СОТ, видео наблюдение и др.
ВЪЗМОЖНИ СА ВСЯКАКВИ ПРОМЕНИ ПО ПРОЕКТИТЕ (от най-минималните като смяна на материалите по фасадата) до основни модификации като промяна на габаритите на къщата, добавяне или премахване на помещения и дори етажи.
Подробен 3D модел на сградата, който изяснява формата и функцията в пълнота още в етапа на проектиране
Бързина на проектирането без компромис с качеството
Анализ на различни варианти и опции и визуализирането им още в начален етап
Функционални планове
Модерен архитектурен софтуер, който минимизира възможните грешки

Визуализациите са илюстративни
Представените изображения са компютърно генерирани фотореалистични образи на сградата, които показват идеята на архитекта. Те визуализират една от многото възможности за завършване на фасадата на сградата. Тяхната основна цел е да изобразят къщата в околната среда по възможно най-реалистичния начин, за да може обитателите да възприемат сградата още преди тя да бъде построена. Цветовете и текстурите на реално изпълнената сграда може да се различават от компютърните изображения.
Фасадните материали могат да бъдат променяни
Визуализациите изобразяват идеята на архитекта и неговото желание да постигане завършен и естетичен образ използвайки конкретни материали по фасадата. Въпреки това, красотата на сградата е строго субективна и затова външната визия може да бъде редактирана според желанията и предпочитанията на възложителите. Всички цветове и материали могат да бъдат променяни, заменяни или премахнати според конкретните нужди.
Всички планове и изображения са предмет на авторско право
Представените визуализации и планове са авторски продукт и плод на архитектурния труд на екипа проектанти на “Ай ЕС Пи Дигитален Дизайн” ООД. Те са изключителна интелектуална собственост на фирмата. На основание член 35 от Закона за авторското право и сродните му права използването на което и да е изображение за търговски, маркетингови и други цели, без изричното писмено съгласие на фирма “Ай ЕС Пи Дигитален Дизайн” ООД е строго забранено.
Коментари и Въпроси