План на първи етаж

Готов проект на къща 40





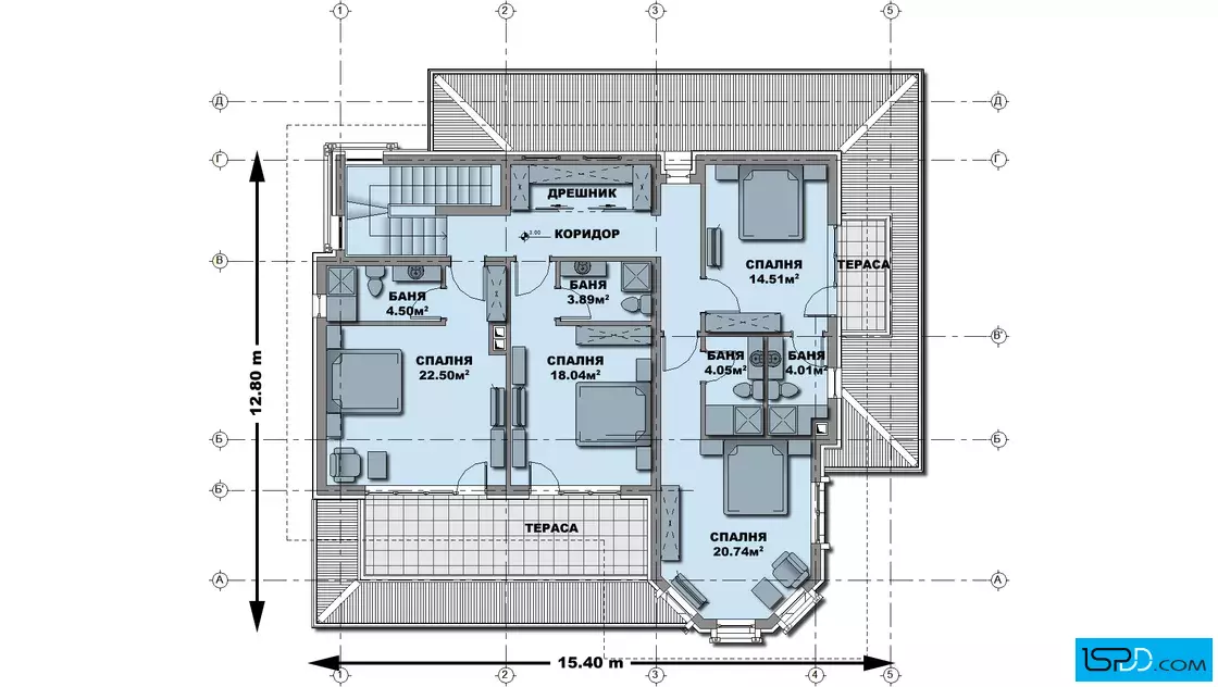
Този готов проект на голяма еднофамилна къща е особено подходящ за къща за гости. Пасторалната и визия с преобладаваща дървена облицовка се вързва хармонично с природната среда на мястото. Всяка спалня в къщата е проектирана със собствена баня за повишен комфорт, както и за да може сградата да функционира като къща за гости. Просторни витрини отварят помещенията към двора, а голяма двукрила врата свързва дневната с верандата. Елегантна дървена решетка от хоризонтални жалузи създава детайл и разгражда мощната стена на стълбището. Особено внимание е отделено на защитата от прегряване на стаите като големите козирки предпазват помещенията от преослънчаване. Къщата е двуетажна и на първо ниво са проектирани входно антре с дрешник към него, просторна дневна с кът за камина, трапезария, кухня, спалня със собствена баня, гараж за две коли, килер, склад и тоалетна. На втория етаж са развити четири големи спални, всяка със самостоятелна баня и общ за нивото дрешник. Пред три от спалните са проектирани тераси, които отчасти са покрити от покривната козирка. Прибраният навътре втори етаж създава усещането за легнала на терена къща, която се вписва органично в околната среда. Благоустрояването на двора се допълва от дървена пергола, по която да растат увивни растения. Под нейната сянка е развито място за хранене на открито.
Конструкцията на къщата е монолитна стоманобетонна с тухлени ограждащи стени с необходимата топлоизолация, монтирана външно. Покривът на сградата е четирискатен, покрит с керемиди. Дограмата е дървена със стъклопакет от нискоемисионно стъкло.
Минималното лице на парцела към улицата е:
за жилищно строителство - 21м
за вилно строителство - 23м
ПРОМЕНИ /МОДИФИКАЦИИ/ ПО ПРОЕКТА:
Важно: Ние сме преди всичко архитекти, а не търговци и проектите, които предлагаме не са „готов артикул”, разпечатан и подреден на рафт, чакащ купувачи. Всеки един „готов проект” е отправна точка към Вашия бъдещ дом. Така подготвени проектите позволяват да се променя вида и начина на отопление, да се добавят допълнителни инсталации и системи като СОТ, видео наблюдение и др.
ВЪЗМОЖНИ СА ВСЯКАКВИ ПРОМЕНИ ПО ПРОЕКТИТЕ (от най-минималните като смяна на материалите по фасадата) до основни модификации като промяна на габаритите на къщата, добавяне или премахване на помещения и дори етажи.
Подробен 3D модел на сградата, който изяснява формата и функцията в пълнота още в етапа на проектиране
Бързина на проектирането без компромис с качеството
Анализ на различни варианти и опции и визуализирането им още в начален етап
Функционални планове
Модерен архитектурен софтуер, който минимизира възможните грешки

Визуализациите са илюстративни
Представените изображения са компютърно генерирани фотореалистични образи на сградата, които показват идеята на архитекта. Те визуализират една от многото възможности за завършване на фасадата на сградата. Тяхната основна цел е да изобразят къщата в околната среда по възможно най-реалистичния начин, за да може обитателите да възприемат сградата още преди тя да бъде построена. Цветовете и текстурите на реално изпълнената сграда може да се различават от компютърните изображения.
Фасадните материали могат да бъдат променяни
Визуализациите изобразяват идеята на архитекта и неговото желание да постигане завършен и естетичен образ използвайки конкретни материали по фасадата. Въпреки това, красотата на сградата е строго субективна и затова външната визия може да бъде редактирана според желанията и предпочитанията на възложителите. Всички цветове и материали могат да бъдат променяни, заменяни или премахнати според конкретните нужди.
Всички планове и изображения са предмет на авторско право
Представените визуализации и планове са авторски продукт и плод на архитектурния труд на екипа проектанти на “Ай ЕС Пи Дигитален Дизайн” ООД. Те са изключителна интелектуална собственост на фирмата. На основание член 35 от Закона за авторското право и сродните му права използването на което и да е изображение за търговски, маркетингови и други цели, без изричното писмено съгласие на фирма “Ай ЕС Пи Дигитален Дизайн” ООД е строго забранено.
Коментари и Въпроси