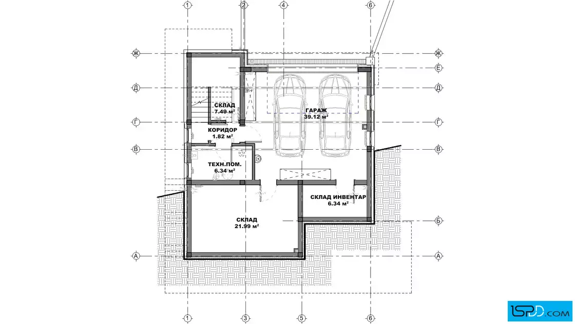
План на подземен етаж

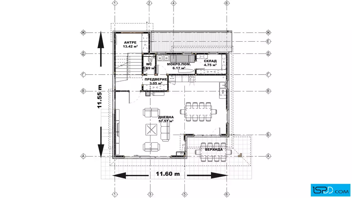
Проект на къща в гр. София
| Етажи | Нето | Бруто |
|---|---|---|
| Подземен етаж | 85.97 кв.м. | 106.85 кв.м. |
| Първи етаж | 88.65 кв.м. | 99.55 кв.м. |
| Покрит вход/веранда | 8.25 кв.м. | |
| Втори етаж | 88.54 кв.м. | 102.53 кв.м. |
| Общо: | 263.16 кв.м. | 317.18 кв.м. |









Когато разглеждаме вариантите за своя нов дом, за нас са важни различни неща. Някои търсят първо стила на проекта, неговата визия и излъчване. За тях е от значение да отговаря на вкуса им. Други се ориентират към типа покрив, в случая четирискатен, вида на конструкцията и дограмата, топлоизолационната система или фасадата. За тях е тази информация: предложението е с дървена скелетна конструкция, дограмата може да е от PVC или алуминий, съответно дву или три камерна. Материалите за облицовката на фасадата са мазилка и камък. Казано по друг начин – тази къща е чудесен вариант за всеки, който търси еднофамилната вила. Леката конструкция, компактната визия, но с достатъчно пространство я правят изключително привлекателна. Тя разполага с приземен етаж за два автомобила, покрита веранда и огромна дневна на първия етаж, докато спалните са разположени далеч от шума на по-спокойния втори етаж. Това разпределение няма как да не впечатли със своята функционалност – докато през деня семейството прекарва времето си в просторния тракт или на верандата, вечерите са тихи и релаксиращи в трите спални.
Подходяща ли е за за семейство на средна възраст, готово да замени напрегнатия градски живот? Да. Може ли да е избор на млади хора, любители на природата и чистия планински въздух? Разбира се.
Тази еднофамилна къща се препоръчва за малък парцел, който не е равнинен.
Подробен 3D модел на сградата, който изяснява формата и функцията в пълнота още в етапа на проектиране
Бързина на проектирането без компромис с качеството
Анализ на различни варианти и опции и визуализирането им още в начален етап
Функционални планове
Модерен архитектурен софтуер, който минимизира възможните грешки

Визуализациите са илюстративни
Представените изображения са компютърно генерирани фотореалистични образи на сградата, които показват идеята на архитекта. Те визуализират една от многото възможности за завършване на фасадата на сградата. Тяхната основна цел е да изобразят къщата в околната среда по възможно най-реалистичния начин, за да може обитателите да възприемат сградата още преди тя да бъде построена. Цветовете и текстурите на реално изпълнената сграда може да се различават от компютърните изображения.
Фасадните материали могат да бъдат променяни
Визуализациите изобразяват идеята на архитекта и неговото желание да постигане завършен и естетичен образ използвайки конкретни материали по фасадата. Въпреки това, красотата на сградата е строго субективна и затова външната визия може да бъде редактирана според желанията и предпочитанията на възложителите. Всички цветове и материали могат да бъдат променяни, заменяни или премахнати според конкретните нужди.
Всички планове и изображения са предмет на авторско право
Представените визуализации и планове са авторски продукт и плод на архитектурния труд на екипа проектанти на “Ай ЕС Пи Дигитален Дизайн” ООД. Те са изключителна интелектуална собственост на фирмата. На основание член 35 от Закона за авторското право и сродните му права използването на което и да е изображение за търговски, маркетингови и други цели, без изричното писмено съгласие на фирма “Ай ЕС Пи Дигитален Дизайн” ООД е строго забранено.
Коментари и Въпроси