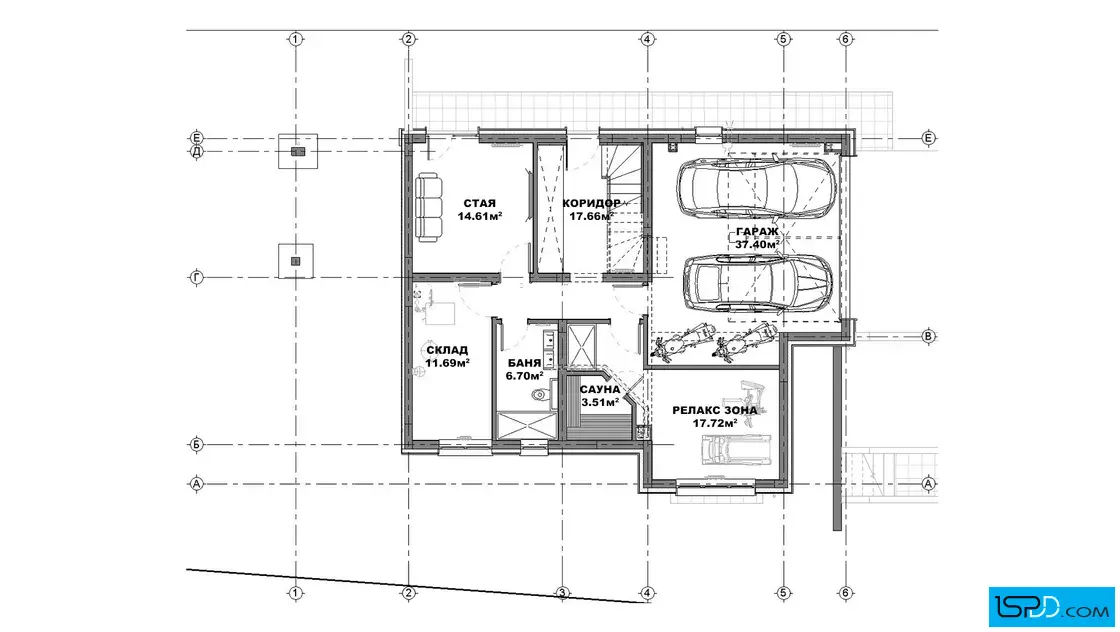
План на подземен етаж

Проект на къща във в.з. Габаро-Азмата
| Етажи | Нето | Бруто |
|---|---|---|
| Подземен етаж | 109.29 кв.м. | 135.09 кв.м. |
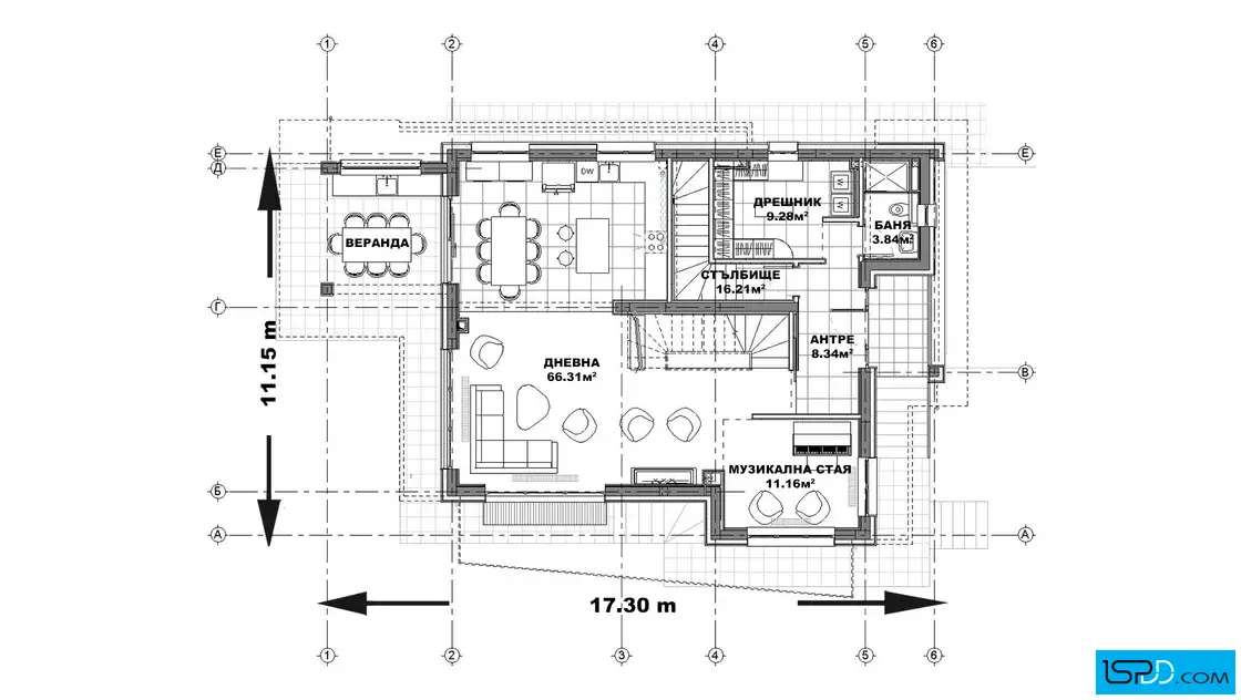
| Първи етаж | 102.14 кв.м. | 135.48 кв.м. |
| Покрит вход/веранда | 12.51 кв.м. | |
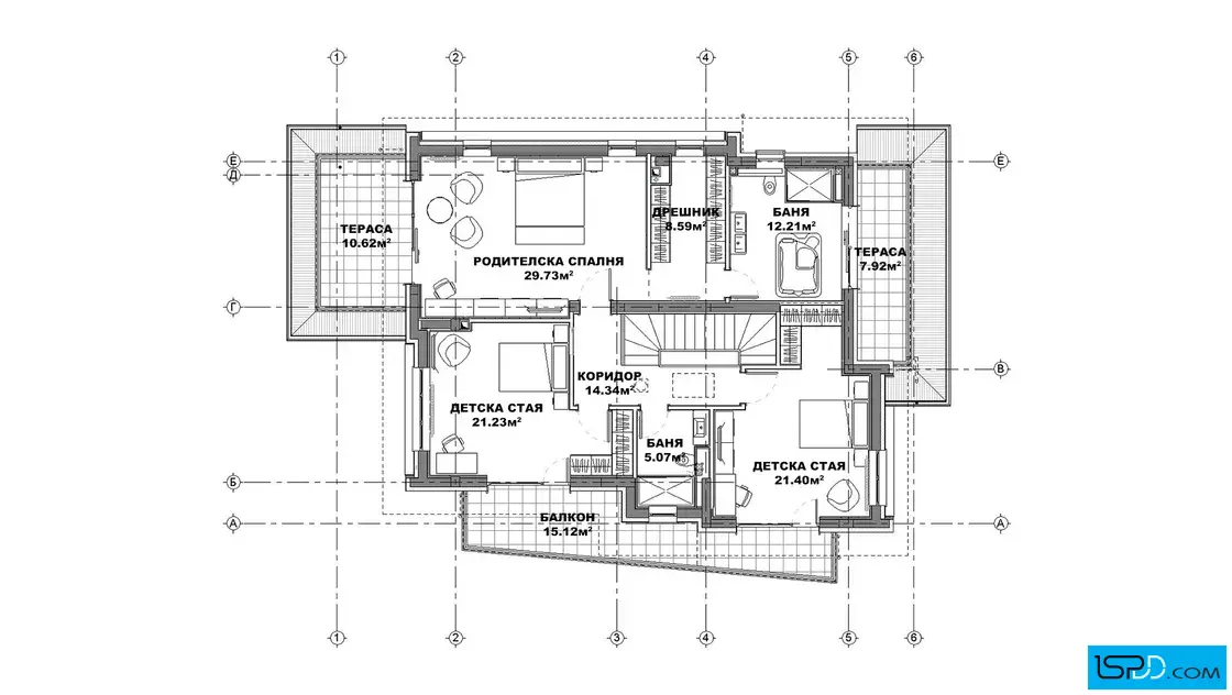
| Втори етаж | 146.22 кв.м. | 180.92 кв.м. |
| Общо: | 357.65 кв.м. | 464 кв.м. |









Този модерен дом във вилна зона Габаро-Азмата предлага изключителен стандарт на живот, разгърнат на три нива с фокус върху комфорта и личните интереси на семейството. Първият етаж посреща с просторна и светла дневна зона, която обединява кухня, трапезария и хол в едно общо пространство за споделени моменти. Оттук се излиза директно на голяма веранда, превръщайки двора в естествено продължение на интериора през топлите месеци. Специален акцент на това ниво е самостоятелната музикална стая – идеално място за творчество и изкуство в самото сърце на дома. За пълно удобство на етажа са разположени още функционално антре, баня и голям дрешник.
Подземното ниво осигурява голям гараж за два автомобила и мотори, което гарантира подредба и сигурност за превозните средства. На същия етаж е разположена лична уелнес зона със сауна и релакс зона, създадени за пълноценно възстановяване и грижа за здравето. Допълнителна стая на това ниво предлага гъвкавост за ползване като спалня за гости или тихо място за хоби. Вторият етаж е изцяло посветен на нощната почивка, като включва впечатляваща родителска спалня със самостоятелна голяма баня и собствен дрешник. Тук се намират и две просторни детски стаи, които се обслужват от допълнителна баня на етажа. Всяко спално помещение на горното ниво има достъп до собствена тераса или балкон, внасяйки светлина и свеж въздух във всяко кътче.
Този дом е перфектно организиран, за да съчетава социалния живот с индивидуалните нужди от спокойствие, спорт и изкуство. Това е място, създадено за вдъхновяващо ежедневие и истински семеен уют сред природата.
Подробен 3D модел на сградата, който изяснява формата и функцията в пълнота още в етапа на проектиране
Бързина на проектирането без компромис с качеството
Анализ на различни варианти и опции и визуализирането им още в начален етап
Функционални планове
Модерен архитектурен софтуер, който минимизира възможните грешки

Визуализациите са илюстративни
Представените изображения са компютърно генерирани фотореалистични образи на сградата, които показват идеята на архитекта. Те визуализират една от многото възможности за завършване на фасадата на сградата. Тяхната основна цел е да изобразят къщата в околната среда по възможно най-реалистичния начин, за да може обитателите да възприемат сградата още преди тя да бъде построена. Цветовете и текстурите на реално изпълнената сграда може да се различават от компютърните изображения.
Фасадните материали могат да бъдат променяни
Визуализациите изобразяват идеята на архитекта и неговото желание да постигане завършен и естетичен образ използвайки конкретни материали по фасадата. Въпреки това, красотата на сградата е строго субективна и затова външната визия може да бъде редактирана според желанията и предпочитанията на възложителите. Всички цветове и материали могат да бъдат променяни, заменяни или премахнати според конкретните нужди.
Всички планове и изображения са предмет на авторско право
Представените визуализации и планове са авторски продукт и плод на архитектурния труд на екипа проектанти на “Ай ЕС Пи Дигитален Дизайн” ООД. Те са изключителна интелектуална собственост на фирмата. На основание член 35 от Закона за авторското право и сродните му права използването на което и да е изображение за търговски, маркетингови и други цели, без изричното писмено съгласие на фирма “Ай ЕС Пи Дигитален Дизайн” ООД е строго забранено.
Коментари и Въпроси