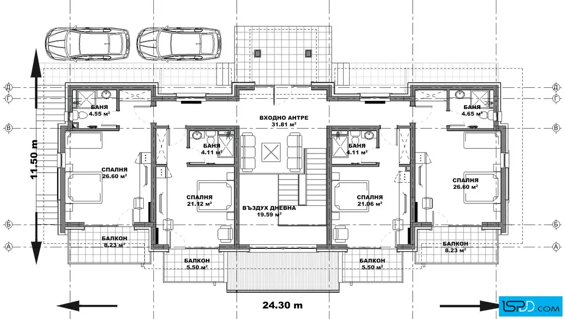
План на първи етаж

Проект на къща в с. Рупите
| Етажи | Нето | Бруто |
|---|---|---|
| Първи етаж | 165.03 кв.м. | 195.22 кв.м. |
| Покрит вход/веранда | 5.52 кв.м. | |
| Втори етаж | 191.67 кв.м. | 230.41 кв.м. |
| Общо: | 356.7 кв.м. | 431.15 кв.м. |










Трудно можете да си представите подобна еднофамилна къща, нали. Суперлативите за този проект са излишни, той е точното съчетание на стил, удобство и представителност. Няма как да не впечатлите своите гости с класическия екстериор, с верандата или с луксозната пергола. Искате да се потопите в живота на античните аристократи? Нищо по-лесно - вече разглеждате перфектното предложение. Разбира се, тук не ви очакват мраморни колони и мозайки, но луксът на четирискатния покрив, керамичните керемиди и тухлите от керамични блокове, дори монолитната стоманено бетонна конструкция правят проекта истинско изкушение. Ако трябва да говорим и в цифри, тази еднофамилна къща е на два етажа, разполага с 11 стаи, 5 спални и 4 тераси. Какво означава това? Достатъчно пространство за всички, включително другите аристократи, вашите приятели. И то пространство, перфектно организирано в отделни зони – дневна зона, кухня, трапезария, детски кът за игри. Почивката е гарантирана на втория етаж, където ще бъдете над светския шум.
Ако се опасявате, че вашата фамилия не е достатъчно голяма за подобна жилищна площ, забравете за тревогите. Това предложение е подходящо и за семейство с две или повече деца, и за двойки, които обичат да прекарват времето си извън града в компанията на близки или приятели. Няма как да не откриете прелестите на природата, насаждавайки им се от тази къща.
Проектът е насочен към реализиране в големи парцели и на стръмни терени.
Подробен 3D модел на сградата, който изяснява формата и функцията в пълнота още в етапа на проектиране
Бързина на проектирането без компромис с качеството
Анализ на различни варианти и опции и визуализирането им още в начален етап
Функционални планове
Модерен архитектурен софтуер, който минимизира възможните грешки

Визуализациите са илюстративни
Представените изображения са компютърно генерирани фотореалистични образи на сградата, които показват идеята на архитекта. Те визуализират една от многото възможности за завършване на фасадата на сградата. Тяхната основна цел е да изобразят къщата в околната среда по възможно най-реалистичния начин, за да може обитателите да възприемат сградата още преди тя да бъде построена. Цветовете и текстурите на реално изпълнената сграда може да се различават от компютърните изображения.
Фасадните материали могат да бъдат променяни
Визуализациите изобразяват идеята на архитекта и неговото желание да постигане завършен и естетичен образ използвайки конкретни материали по фасадата. Въпреки това, красотата на сградата е строго субективна и затова външната визия може да бъде редактирана според желанията и предпочитанията на възложителите. Всички цветове и материали могат да бъдат променяни, заменяни или премахнати според конкретните нужди.
Всички планове и изображения са предмет на авторско право
Представените визуализации и планове са авторски продукт и плод на архитектурния труд на екипа проектанти на “Ай ЕС Пи Дигитален Дизайн” ООД. Те са изключителна интелектуална собственост на фирмата. На основание член 35 от Закона за авторското право и сродните му права използването на което и да е изображение за търговски, маркетингови и други цели, без изричното писмено съгласие на фирма “Ай ЕС Пи Дигитален Дизайн” ООД е строго забранено.
Коментари и Въпроси