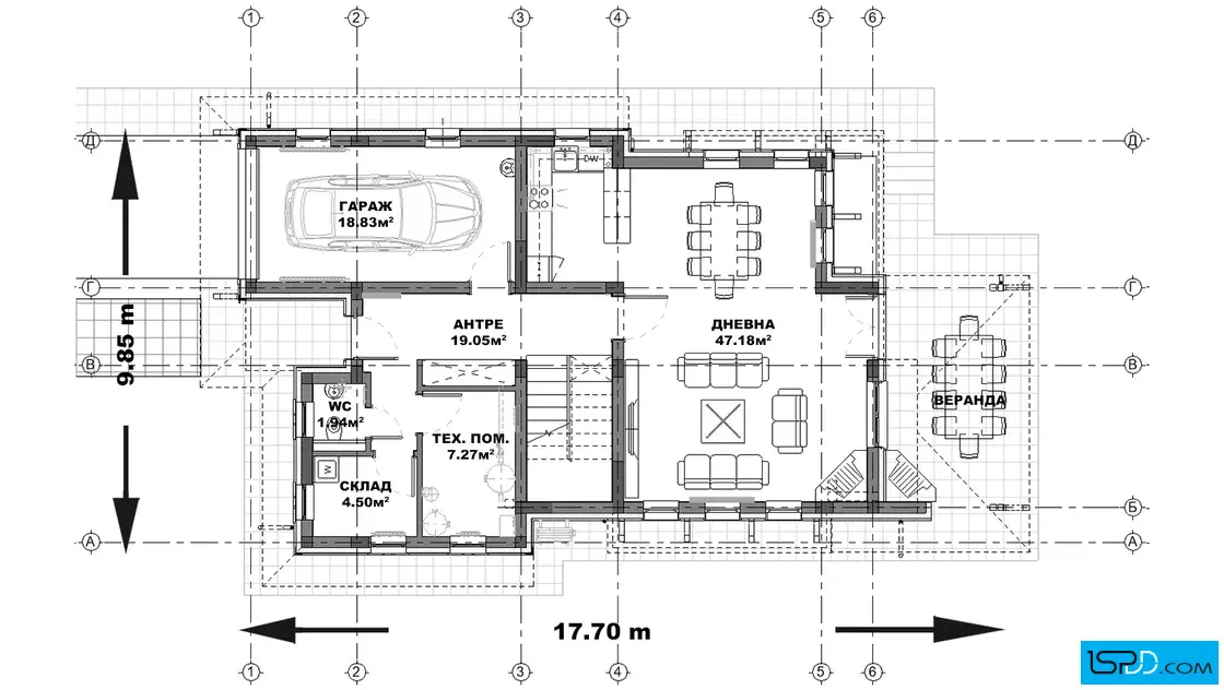
План на първи етаж

Проект на къща в гр. Сапарева баня
| Етажи | Нето | Бруто |
|---|---|---|
| Първи етаж | 98.78 кв.м. | 123.3 кв.м. |
| Покрит вход/веранда | 14.78 кв.м. | |
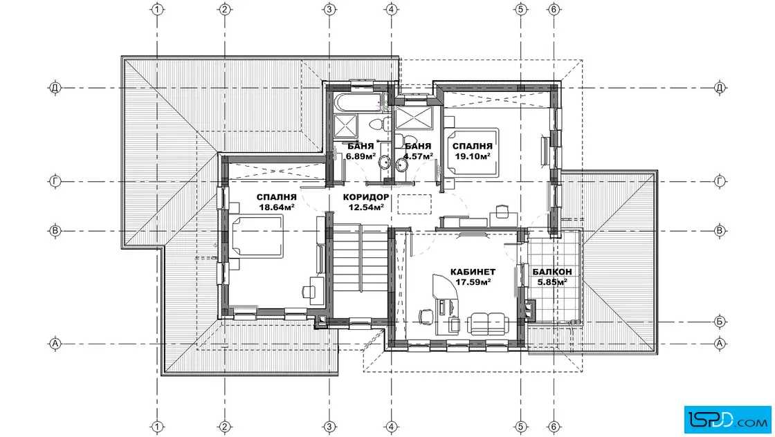
| Втори етаж | 85.19 кв.м. | 106.42 кв.м. |
| Общо: | 183.97 кв.м. | 244.5 кв.м. |








Ето това е проект, който ни праща директно към възрожденското строителство. Балканджийската къща е позната на всеки, тя все още може да се види в старопланинските градчета и вече тук. Уникалният архитектурен стил се харесва на мнозина – от любители на българските старини, до съвременни млади хора, които обаче биха реагирали положително на подобна „реплика“. Проектът има всички характеристики на провинциалното жилище: четирискатен покрив, стоманобетонна монолитна конструкция, стени от тухла, PVC или алуминиева дограма с двоен/ троен стъклопакет. Фасада, която толкова наподобява стилистиката на къщите от балканските градчета е от минерална мазилка; каменна облицовка и декоративни HPL панели. Обърнете внимание на детайлите, именно те са онзи акцент, който ще впечатли веднага вашите гости. Терасата, която толкова прилича на чардак, „дървената“ гаражна врата, стила на покритата веранда, прозорците. Със сигурност няма как да не усетите духа на миналото, още повече ако този проект се реализира на място, заобиколено от природните красоти.
Еднофамилната къща е на два етажа, на които са разположени дневна с почти директна връзка към верандата, кабинет и две спални. Интериорът е организиран така, че да е максимално функционален както за по-възрастни собственици, така и за семейства, които искат да ползват своя имот в почивните дни или по празниците.
Подходящ за малки и равнинни парцели.
Подробен 3D модел на сградата, който изяснява формата и функцията в пълнота още в етапа на проектиране
Бързина на проектирането без компромис с качеството
Анализ на различни варианти и опции и визуализирането им още в начален етап
Функционални планове
Модерен архитектурен софтуер, който минимизира възможните грешки

Визуализациите са илюстративни
Представените изображения са компютърно генерирани фотореалистични образи на сградата, които показват идеята на архитекта. Те визуализират една от многото възможности за завършване на фасадата на сградата. Тяхната основна цел е да изобразят къщата в околната среда по възможно най-реалистичния начин, за да може обитателите да възприемат сградата още преди тя да бъде построена. Цветовете и текстурите на реално изпълнената сграда може да се различават от компютърните изображения.
Фасадните материали могат да бъдат променяни
Визуализациите изобразяват идеята на архитекта и неговото желание да постигане завършен и естетичен образ използвайки конкретни материали по фасадата. Въпреки това, красотата на сградата е строго субективна и затова външната визия може да бъде редактирана според желанията и предпочитанията на възложителите. Всички цветове и материали могат да бъдат променяни, заменяни или премахнати според конкретните нужди.
Всички планове и изображения са предмет на авторско право
Представените визуализации и планове са авторски продукт и плод на архитектурния труд на екипа проектанти на “Ай ЕС Пи Дигитален Дизайн” ООД. Те са изключителна интелектуална собственост на фирмата. На основание член 35 от Закона за авторското право и сродните му права използването на което и да е изображение за търговски, маркетингови и други цели, без изричното писмено съгласие на фирма “Ай ЕС Пи Дигитален Дизайн” ООД е строго забранено.
Коментари и Въпроси