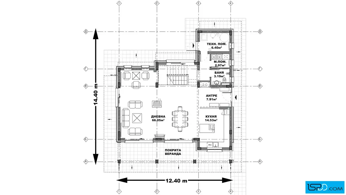
План на първи етаж

Еднофамилна къща в с. Ветрен
| Етажи | Нето | Бруто |
|---|---|---|
| Първи етаж | 101.04 кв.м. | 121.46 кв.м. |
| Покрит вход/веранда | 24.39 кв.м. | |
| Втори етаж | 90.25 кв.м. | 111.56 кв.м. |
| Общо: | 191.29 кв.м. | 257.41 кв.м. |







Това е проект на чаровна градска къща със средиземноморско излъчване. Използваните светли цветове за мазилката в съчетание с финните декоративни варовикови детайли по фасадата и около прозорците допринасят за елегантността на визията. Проектираната покрита веранда към двора е решена с арковидна колонада. По фасадата са използвани мазилка и каменна облицовка от мушелкалк. Проектирани са хоризонтални ивици от камък, както и негативни кантове изрязани в топлоизолацията за фин детайл. Вилната сграда е решена на два етажа. Стълбището е в северозападната част на къщата и е метално.
Първо ниво съдържа входно антре, дневна, трапезария, кухня, склад, килер и баня. Дневната, трапезарията и кухнята са решени еднопространствено. В дневната е проектиран кът за камина. Просторна покрита веранда свързва дневната зона с двора. Всички помещения имат големи прозорци или витрини за максимално използване на естествената дневна светлина. Второ ниво съдържа две спални, две бани и два дрешника. Пред спалните е проектирана тераса с изглед на юг и изток, която е частично покрита от покрива. Предвиден е отвор в покривната плоча за сервизиране на подпокривното пространство.
Конструкцията е монолитна стоманобетонна. Ограждащите стени са тухлени с външна топлоизолация. Дограмата е PVC със стъклопакет от нискоемисионно стъкло. Покривът е четирискатен покрит с керамични керемиди “Tondach”.
Площ на първо ниво: 121 кв.м.
Площ на второ ниво: 111 кв.м.
Подробен 3D модел на сградата, който изяснява формата и функцията в пълнота още в етапа на проектиране
Бързина на проектирането без компромис с качеството
Анализ на различни варианти и опции и визуализирането им още в начален етап
Функционални планове
Модерен архитектурен софтуер, който минимизира възможните грешки

Визуализациите са илюстративни
Представените изображения са компютърно генерирани фотореалистични образи на сградата, които показват идеята на архитекта. Те визуализират една от многото възможности за завършване на фасадата на сградата. Тяхната основна цел е да изобразят къщата в околната среда по възможно най-реалистичния начин, за да може обитателите да възприемат сградата още преди тя да бъде построена. Цветовете и текстурите на реално изпълнената сграда може да се различават от компютърните изображения.
Фасадните материали могат да бъдат променяни
Визуализациите изобразяват идеята на архитекта и неговото желание да постигане завършен и естетичен образ използвайки конкретни материали по фасадата. Въпреки това, красотата на сградата е строго субективна и затова външната визия може да бъде редактирана според желанията и предпочитанията на възложителите. Всички цветове и материали могат да бъдат променяни, заменяни или премахнати според конкретните нужди.
Всички планове и изображения са предмет на авторско право
Представените визуализации и планове са авторски продукт и плод на архитектурния труд на екипа проектанти на “Ай ЕС Пи Дигитален Дизайн” ООД. Те са изключителна интелектуална собственост на фирмата. На основание член 35 от Закона за авторското право и сродните му права използването на което и да е изображение за търговски, маркетингови и други цели, без изричното писмено съгласие на фирма “Ай ЕС Пи Дигитален Дизайн” ООД е строго забранено.
Коментари и Въпроси