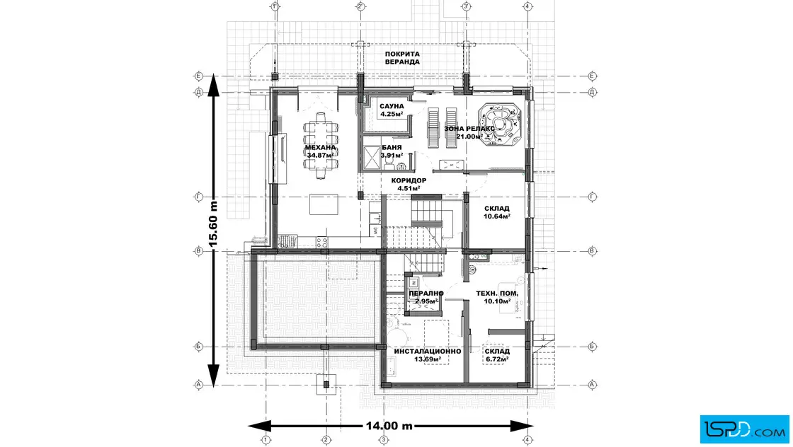
План на подземен етаж

Еднофамилна къща в с. Бистрица
| Етажи | Нето | Бруто |
|---|---|---|
| Подземен етаж | 128.78 кв.м. | 155.64 кв.м. |
| Първи етаж | 188.5 кв.м. | 225.1 кв.м. |
| Втори етаж | 122.03 кв.м. | 151.42 кв.м. |
| Трети етаж | 25.85 кв.м. | 25.85 кв.м. |
| Общо: | 465.16 кв.м. | 558.01 кв.м. |









Това е проект на луксозна къща, която е създадена с идеята да задоволи всички потребности на своите обитатели. Специално внимание е отделено на зоната за релакс, която включва домашно СПА и външен басейн. Визията на къщата е модерна и отчита особеностите на мястото, където е ситуирана. Използвана е груба каменна зидария, която свързва сградата с терена. Във височина материалите по фасадата стават по-рафинирани и обликът завършва с тухлена облицовка. Варовикови и композитни кантове около прозорците и витрините допълват елегантната визия. Къщата е решена на три етажа, всеки с по две полу-нива. Стълбището е в средата на къщата и е осветено от покривен прозорец.
Подземният етаж от юг е изцяло вкопан в земята, докато от север излиза на нивото на терена. На долно полу-ниво са проектирани механа с кът за камина и кухненски бокс, склад и зона релакс със сауна, баня и кът за хидромасажна вана. От механата и от зона релакс се излиза на покрита веранда. Горното полу-ниво съдържа инсталационно помещение, склад, техническо помещение и перално. Проектирани са два отвора в плочата за спускане на обемисти товари и съоръжения, както и сервизна стълба към гаража на горно ниво. На първи етаж долното полу-ниво съдържа просторна дневна с кът за камина, трапезария, кухня с островна мебел, килер и баня. От дневната, трапезарията и кухнята се излиза на просторна тераса с изглед към двора и откриващата се панорама. Горното полу-ниво съдържа входно антре, кабинет и гараж за две коли. На втори етаж долното полу-ниво съдържа две спални, всяка с дрешник и баня. В главната спалня е развит кът за камина. Горното полу-ниво съдържа една спалня с дрешник и баня. В подпокривното пространство е проектирано техническо помещение, където са разположени три контейнера за вода.
Конструкцията е монолитна стоманобетонна. Ограждащите стени са тухлени с външна топлоизолация. Дограмата е PVC със стъклопакет от нискоемисионно стъкло. Покривът е четирискатен покрит с керамични керемиди “Tondach”.
Подробен 3D модел на сградата, който изяснява формата и функцията в пълнота още в етапа на проектиране
Бързина на проектирането без компромис с качеството
Анализ на различни варианти и опции и визуализирането им още в начален етап
Функционални планове
Модерен архитектурен софтуер, който минимизира възможните грешки

Визуализациите са илюстративни
Представените изображения са компютърно генерирани фотореалистични образи на сградата, които показват идеята на архитекта. Те визуализират една от многото възможности за завършване на фасадата на сградата. Тяхната основна цел е да изобразят къщата в околната среда по възможно най-реалистичния начин, за да може обитателите да възприемат сградата още преди тя да бъде построена. Цветовете и текстурите на реално изпълнената сграда може да се различават от компютърните изображения.
Фасадните материали могат да бъдат променяни
Визуализациите изобразяват идеята на архитекта и неговото желание да постигане завършен и естетичен образ използвайки конкретни материали по фасадата. Въпреки това, красотата на сградата е строго субективна и затова външната визия може да бъде редактирана според желанията и предпочитанията на възложителите. Всички цветове и материали могат да бъдат променяни, заменяни или премахнати според конкретните нужди.
Всички планове и изображения са предмет на авторско право
Представените визуализации и планове са авторски продукт и плод на архитектурния труд на екипа проектанти на “Ай ЕС Пи Дигитален Дизайн” ООД. Те са изключителна интелектуална собственост на фирмата. На основание член 35 от Закона за авторското право и сродните му права използването на което и да е изображение за търговски, маркетингови и други цели, без изричното писмено съгласие на фирма “Ай ЕС Пи Дигитален Дизайн” ООД е строго забранено.
Коментари и Въпроси