План на първи етаж

Еднофамилна къща в с. Байлово
| Етажи | Нето | Бруто |
|---|---|---|
| Първи етаж | 98.88 кв.м. | 121.34 кв.м. |
| Покрит вход/веранда | 31.26 кв.м. | |
| Втори етаж | 86.14 кв.м. | 108.3 кв.м. |
| Общо: | 185.02 кв.м. | 260.9 кв.м. |









Това е проект на съвременна къща с градско излъчване и модерна визия. Мощните обеми, които се преплитат и площното остъкляване на дневната зона подсилват това усещане. По фасадата са използвани суха каменна зидария, дървена облицовка и светла мазилка. Проектирани са варовикови кантове около прозорците. Развита е покрита веранда с кът за барбекю, откъдето обитателите могат да се насладят на двора и на откриващата се панорама. Къщата е решена на два етажа. Стълбището е в североизточната част.
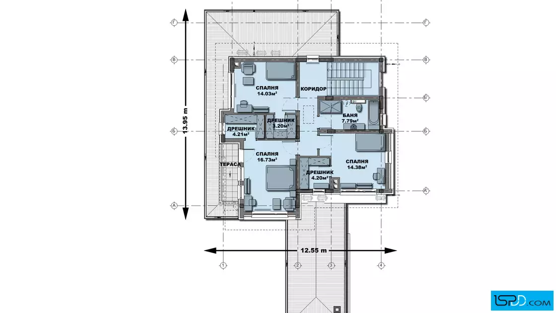
Първи етаж съдържа входно антре, дневна, трапезария, кухня, кабинет, склад, инсталационно помещение и баня. Дневната, трапезарията и кухнята са решени еднопространствено. В дневната е проектиран кът за камина. Нивото е полу-вкопано от изток, а на запад излиза на равнището на терена. Всички помещения имат големи прозорци или витрини за максимално използване на естествената дневна светлина. В южната част на къщата е проектирана покрита веранда с кът за барбекю. Втори етаж съдържа три спални с индивидуални дрешници към тях и баня с тоалетна общи за етажа. Пред югозападната спалня е проектирана тераса, която е частично покрита от покрива. Проектиран е отвор в покривната плоча за дървена сгъваема стълба, която служи за ревизия на подпокривното пространство.
Подробен 3D модел на сградата, който изяснява формата и функцията в пълнота още в етапа на проектиране
Бързина на проектирането без компромис с качеството
Анализ на различни варианти и опции и визуализирането им още в начален етап
Функционални планове
Модерен архитектурен софтуер, който минимизира възможните грешки

Визуализациите са илюстративни
Представените изображения са компютърно генерирани фотореалистични образи на сградата, които показват идеята на архитекта. Те визуализират една от многото възможности за завършване на фасадата на сградата. Тяхната основна цел е да изобразят къщата в околната среда по възможно най-реалистичния начин, за да може обитателите да възприемат сградата още преди тя да бъде построена. Цветовете и текстурите на реално изпълнената сграда може да се различават от компютърните изображения.
Фасадните материали могат да бъдат променяни
Визуализациите изобразяват идеята на архитекта и неговото желание да постигане завършен и естетичен образ използвайки конкретни материали по фасадата. Въпреки това, красотата на сградата е строго субективна и затова външната визия може да бъде редактирана според желанията и предпочитанията на възложителите. Всички цветове и материали могат да бъдат променяни, заменяни или премахнати според конкретните нужди.
Всички планове и изображения са предмет на авторско право
Представените визуализации и планове са авторски продукт и плод на архитектурния труд на екипа проектанти на “Ай ЕС Пи Дигитален Дизайн” ООД. Те са изключителна интелектуална собственост на фирмата. На основание член 35 от Закона за авторското право и сродните му права използването на което и да е изображение за търговски, маркетингови и други цели, без изричното писмено съгласие на фирма “Ай ЕС Пи Дигитален Дизайн” ООД е строго забранено.
Коментари и Въпроси