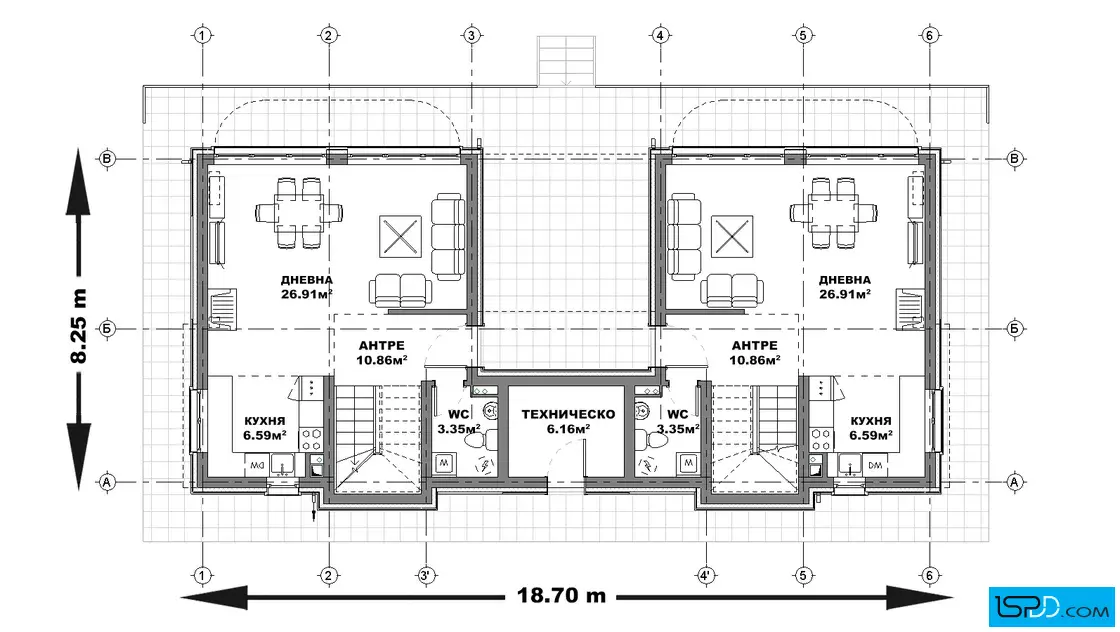
План на първи етаж

Еднофамилна къща в гр. София






Това е проект на къща „близнак”, която е изградена в природна среда. За целта са използвани естествени материали за фасадата – дялан камък и дървена облицовка. Къщата е изцяло обърната към двора – просторни витрини приобщават помещенията с верандата и гледката. Сградата е двуетажна.
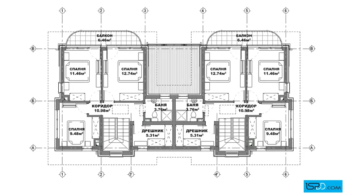
На първо ниво всяка страна на сградата съдържа входно антре, дневна, трапезария, кухня и тоалетна с кът за пералня. Дневната, трапезарията и кухнята са решени еднопространствено. В дневната е проектиран кът за камина на водна риза, която служи и за отопление. Всички помещения имат големи прозорци или витрини, като по този начин обитателите ще могат да се възползват максимално от естествената дневна светлина. Развита е покрита веранда с поглед към двора. Проектирано е инсталационно помещение в южната част на сградата. Второ ниво за всяка страна съдържа три спални, баня и дрешник. Пред две от спалните е проектиран балкон, който е покрит от козирката на покрива. Проектиран е отвор в покривната плоча за дървена сгъваема стълба, както и за сервизиране на подпокривното пространство.
Конструкцията е монолитна стоманобетонна. Ограждащите стени са тухлени с външна топлоизолация. Фасадното оформление включва мощни каменни зидове бяла мазилка и дървена облицовка. Дограмата е PVC със стъклопакет от нискоемисионно стъкло. Покривът е четирискатен покрит с керамични керемиди “Tondach”.
Площ на първо ниво: 129 кв.м.
Площ на второ ниво: 153 кв.м.
Подробен 3D модел на сградата, който изяснява формата и функцията в пълнота още в етапа на проектиране
Бързина на проектирането без компромис с качеството
Анализ на различни варианти и опции и визуализирането им още в начален етап
Функционални планове
Модерен архитектурен софтуер, който минимизира възможните грешки

Визуализациите са илюстративни
Представените изображения са компютърно генерирани фотореалистични образи на сградата, които показват идеята на архитекта. Те визуализират една от многото възможности за завършване на фасадата на сградата. Тяхната основна цел е да изобразят къщата в околната среда по възможно най-реалистичния начин, за да може обитателите да възприемат сградата още преди тя да бъде построена. Цветовете и текстурите на реално изпълнената сграда може да се различават от компютърните изображения.
Фасадните материали могат да бъдат променяни
Визуализациите изобразяват идеята на архитекта и неговото желание да постигане завършен и естетичен образ използвайки конкретни материали по фасадата. Въпреки това, красотата на сградата е строго субективна и затова външната визия може да бъде редактирана според желанията и предпочитанията на възложителите. Всички цветове и материали могат да бъдат променяни, заменяни или премахнати според конкретните нужди.
Всички планове и изображения са предмет на авторско право
Представените визуализации и планове са авторски продукт и плод на архитектурния труд на екипа проектанти на “Ай ЕС Пи Дигитален Дизайн” ООД. Те са изключителна интелектуална собственост на фирмата. На основание член 35 от Закона за авторското право и сродните му права използването на което и да е изображение за търговски, маркетингови и други цели, без изричното писмено съгласие на фирма “Ай ЕС Пи Дигитален Дизайн” ООД е строго забранено.
Коментари и Въпроси