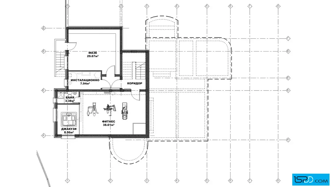
План на подземен етаж

Еднофамилна къща в с. Панагюрски колонии






















Проектът представлява луксозна еднофамилна къща с класически облик и стилна визия. Фасадите са решени в топли пастелни тонове и са отделени с бели кантове от каменната облицовка от формован гнайс. Декоративните фризове и балансираното използване на балюстрите създават усещане за лукс и напомнят на италианска вила. По-малките прозорци и плътните стени придават монументалност на къщата, особено погледната от ниско. Умело е преодоляна голямата денивелация на терена, която е повече от 6 метра.
Къщата е проектирана с един подземен (сутеренен), два надземни и един тавански етажи. Отделно е развита зона за барбекю с външен санитарен възел и склад за инструменти. Предвиден е открит басейн с размери 4х8 метра, както и белведере – кът с панорамна гледка към цялата околност.
Конструкцията на къщата е монолитна, стоманобетонна. Ограждащите стени са тухлени с външна топлоизолация. Фасадното оформление включва каменна облицовка и цветна силиконова мазилка. Дограмата е от PVC със стъклопакет от нискоемисионно стъкло. Покривът е четирискатен покрит с керемиди.
Площ на подземно ниво: 120 кв.м.
Площ на първо ниво: 237кв.м. + 45кв.м. – зона барбекю
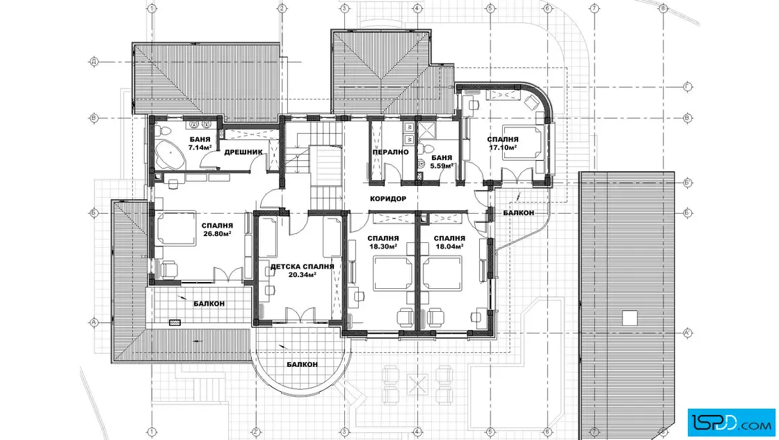
Площ на второ ниво: 207кв.м.
Тавански (подпокривен) етаж: 64кв.м.
Подробен 3D модел на сградата, който изяснява формата и функцията в пълнота още в етапа на проектиране
Бързина на проектирането без компромис с качеството
Анализ на различни варианти и опции и визуализирането им още в начален етап
Функционални планове
Модерен архитектурен софтуер, който минимизира възможните грешки

Визуализациите са илюстративни
Представените изображения са компютърно генерирани фотореалистични образи на сградата, които показват идеята на архитекта. Те визуализират една от многото възможности за завършване на фасадата на сградата. Тяхната основна цел е да изобразят къщата в околната среда по възможно най-реалистичния начин, за да може обитателите да възприемат сградата още преди тя да бъде построена. Цветовете и текстурите на реално изпълнената сграда може да се различават от компютърните изображения.
Фасадните материали могат да бъдат променяни
Визуализациите изобразяват идеята на архитекта и неговото желание да постигане завършен и естетичен образ използвайки конкретни материали по фасадата. Въпреки това, красотата на сградата е строго субективна и затова външната визия може да бъде редактирана според желанията и предпочитанията на възложителите. Всички цветове и материали могат да бъдат променяни, заменяни или премахнати според конкретните нужди.
Всички планове и изображения са предмет на авторско право
Представените визуализации и планове са авторски продукт и плод на архитектурния труд на екипа проектанти на “Ай ЕС Пи Дигитален Дизайн” ООД. Те са изключителна интелектуална собственост на фирмата. На основание член 35 от Закона за авторското право и сродните му права използването на което и да е изображение за търговски, маркетингови и други цели, без изричното писмено съгласие на фирма “Ай ЕС Пи Дигитален Дизайн” ООД е строго забранено.
Коментари и Въпроси