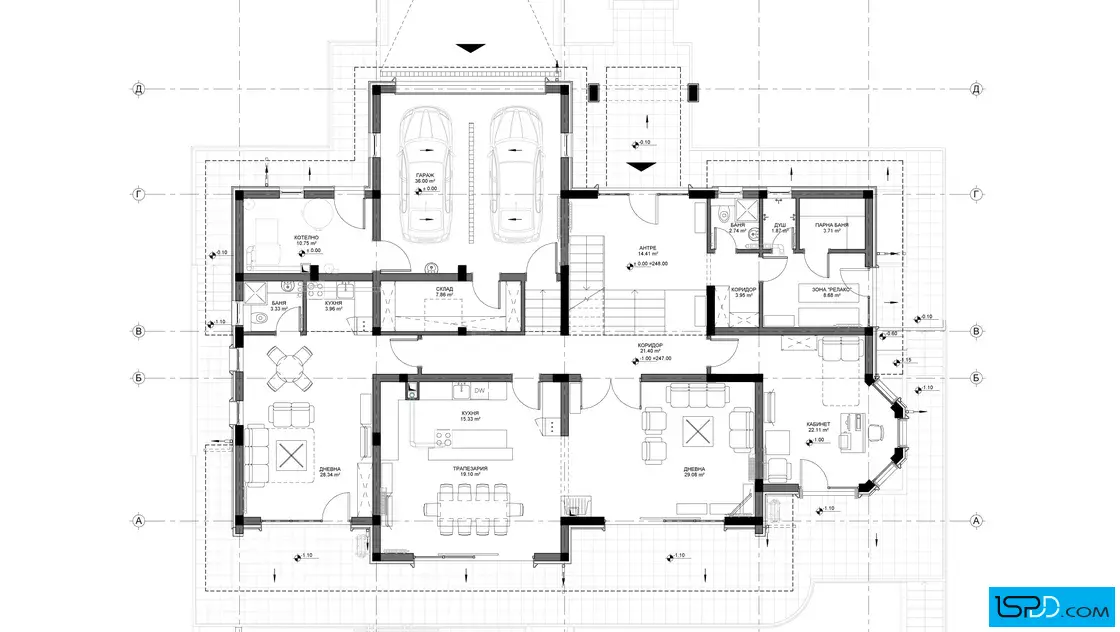
План на първи етаж

Еднофамилна къща









Това е проект на луксозна къща, с модерно излъчване. Разположена е на южен склон с прекрасен изглед към Стара Планина. Отчитайки това къщата е проектирана така, че всички основни помещения да са обърнати към откриващата се панорама. Площни витрини и прозорци приобщават интериора с двора и околната среда. Търсен е обликът на модерна къща, която да предостави всички удобства на своите обитатели като същевременно да се вписва в природната среда чрез фасадните материали – камък и дърво. За да се преодолее денивелацията на терена къщата е решена на два етажа с две полунива. Полуниво 0,00 съдържа просторно входно антре, гараж за два автомобила, склад към гаража, котелно помещение, баня, дрешник, и зона “релакс” с душ и парна баня. Полуниво -1,00 съдържа дневна, трапезария, кухня, кабинет и второстепенна дневна с кухненски бокс и баня. Дневната, трапезарията и кухнята са решени еднопространствено. На югоизток е проектирана просторна веранда, която е отчасти покрита от балконите и покрива на втория етаж. В дневната е проектиран кът за камина. На втория етаж полуниво +2,00 съдържа три просторни спални, баня и дрешник към родителската спалня. Пред всяка спалня е проектирана тераса. Полуниво +2,80 съдържа баня и дрешник общи за етажа и перално помещение. Проектът има за цел да предаде на къщата представителност, но без да жертва усещането за уют и топлина.
Дворът е решен на нива, за да се преодолее стръмния терен. Проектирани са лятна кухня с барбекю и басейн с размери 8м на 4м.
Конструкцията е монолитна стоманобетонна. Ограждащите стени са тухлени с външна топлоизолация. Фасадното оформление включва каменна облицовка, дървена облицовка от HPL панели и цветна минерална мазилка „Baumit”. Дограмата е от PVC със стъклопакет от нискоемисионно стъкло. Покривът е четирискатен покрит с бетонни керемиди “Bramac”.
Площ на първо ниво: 270 кв.м.
Площ на второ ниво: 184 кв.м.
Подробен 3D модел на сградата, който изяснява формата и функцията в пълнота още в етапа на проектиране
Бързина на проектирането без компромис с качеството
Анализ на различни варианти и опции и визуализирането им още в начален етап
Функционални планове
Модерен архитектурен софтуер, който минимизира възможните грешки

Визуализациите са илюстративни
Представените изображения са компютърно генерирани фотореалистични образи на сградата, които показват идеята на архитекта. Те визуализират една от многото възможности за завършване на фасадата на сградата. Тяхната основна цел е да изобразят къщата в околната среда по възможно най-реалистичния начин, за да може обитателите да възприемат сградата още преди тя да бъде построена. Цветовете и текстурите на реално изпълнената сграда може да се различават от компютърните изображения.
Фасадните материали могат да бъдат променяни
Визуализациите изобразяват идеята на архитекта и неговото желание да постигане завършен и естетичен образ използвайки конкретни материали по фасадата. Въпреки това, красотата на сградата е строго субективна и затова външната визия може да бъде редактирана според желанията и предпочитанията на възложителите. Всички цветове и материали могат да бъдат променяни, заменяни или премахнати според конкретните нужди.
Всички планове и изображения са предмет на авторско право
Представените визуализации и планове са авторски продукт и плод на архитектурния труд на екипа проектанти на “Ай ЕС Пи Дигитален Дизайн” ООД. Те са изключителна интелектуална собственост на фирмата. На основание член 35 от Закона за авторското право и сродните му права използването на което и да е изображение за търговски, маркетингови и други цели, без изричното писмено съгласие на фирма “Ай ЕС Пи Дигитален Дизайн” ООД е строго забранено.
Коментари и Въпроси