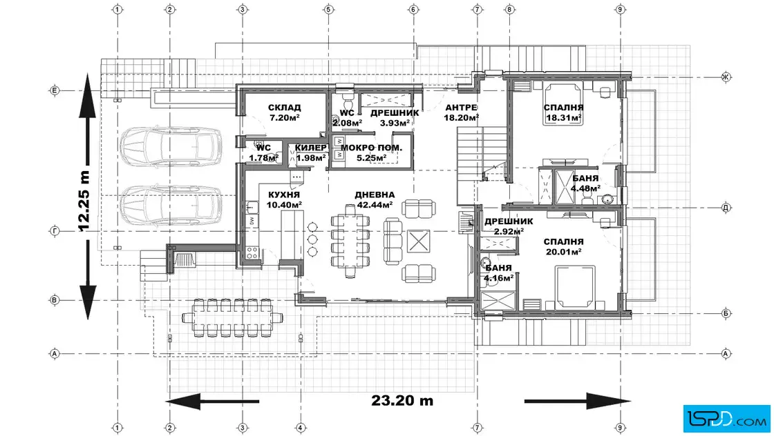
План на първи етаж

Проект на къща в с. Синеморец
| Етажи | Нето | Бруто |
|---|---|---|
| Първи етаж | 152.76 кв.м. | 175.84 кв.м. |
| Покрит вход/веранда | 57.73 кв.м. | |
| Втори етаж | 54.11 кв.м. | 77.72 кв.м. |
| Общо: | 206.87 кв.м. | 311.29 кв.м. |








Този модерен проект в село Синеморец предлага съвършено съчетание от съвременен лукс и крайбрежен уют, проектиран за спокоен и качествен живот. Основният фокус на дома е просторната дневна зона, която обединява хол, трапезария и кухня в едно светло пространство, изпълнено с естествена светлина. Огромната веранда създава идеалното място за сутрешно кафе или незабравими вечери под открито небе. Първият етаж е посветен на социалния живот и удобството, като предлага плавна връзка между всички функционални зони. Тук са разположени още практично антре, мокро помещение, отделна тоалетна и склад, които осигуряват перфектна организация в ежедневието. Проектът включва и покрита зона за паркиране на два автомобила, интегрирана удобно в ниското ниво на сградата.
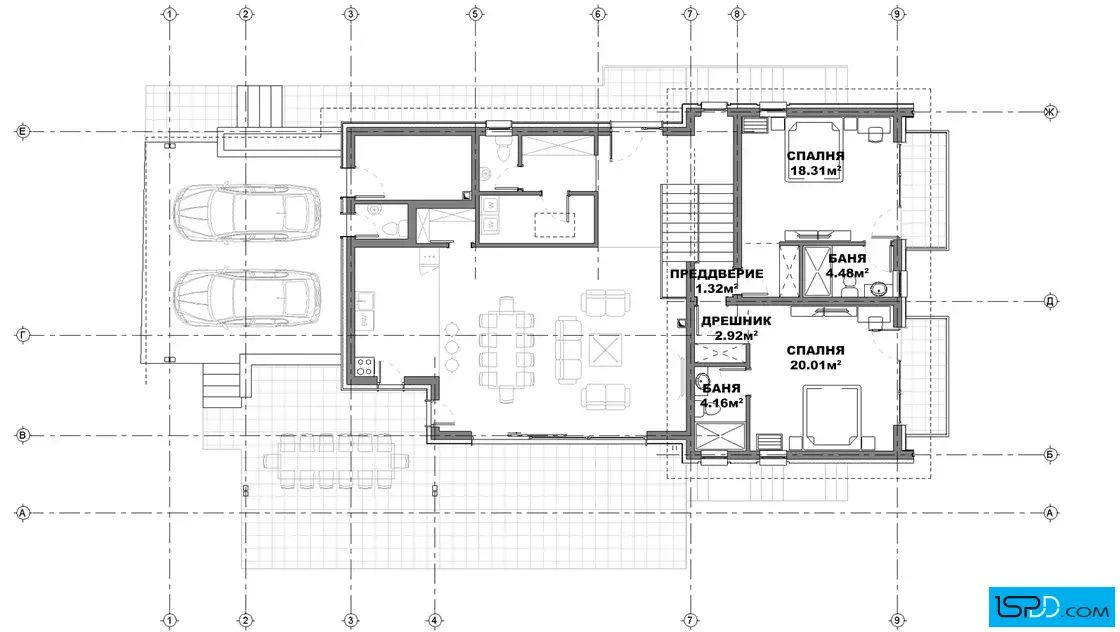
На долно полу-ниво са развити две уютни спални със собствени бани за максимално удобство. Спалните имат безпрепятствен достъп до двора. Вторият етаж е оформен като уединена зона за почивка, където са разположени още две просторни спални. Всяка от тях разполага със собствена баня и самостоятелен дрешник, което гарантира пълен комфорт и лично пространство за обитателите.
Модерната визия с големи стъклени витрини залива интериора със светлина и визуално свързва дома с обкръжаващата го природа. Това е къща, в която функционалността среща спокойствието, създавайки хармонична среда за почивка край морето. Този дом обещава стил и свобода, като превръща всеки ден в истинско ваканционно изживяване.
Подробен 3D модел на сградата, който изяснява формата и функцията в пълнота още в етапа на проектиране
Бързина на проектирането без компромис с качеството
Анализ на различни варианти и опции и визуализирането им още в начален етап
Функционални планове
Модерен архитектурен софтуер, който минимизира възможните грешки

Визуализациите са илюстративни
Представените изображения са компютърно генерирани фотореалистични образи на сградата, които показват идеята на архитекта. Те визуализират една от многото възможности за завършване на фасадата на сградата. Тяхната основна цел е да изобразят къщата в околната среда по възможно най-реалистичния начин, за да може обитателите да възприемат сградата още преди тя да бъде построена. Цветовете и текстурите на реално изпълнената сграда може да се различават от компютърните изображения.
Фасадните материали могат да бъдат променяни
Визуализациите изобразяват идеята на архитекта и неговото желание да постигане завършен и естетичен образ използвайки конкретни материали по фасадата. Въпреки това, красотата на сградата е строго субективна и затова външната визия може да бъде редактирана според желанията и предпочитанията на възложителите. Всички цветове и материали могат да бъдат променяни, заменяни или премахнати според конкретните нужди.
Всички планове и изображения са предмет на авторско право
Представените визуализации и планове са авторски продукт и плод на архитектурния труд на екипа проектанти на “Ай ЕС Пи Дигитален Дизайн” ООД. Те са изключителна интелектуална собственост на фирмата. На основание член 35 от Закона за авторското право и сродните му права използването на което и да е изображение за търговски, маркетингови и други цели, без изричното писмено съгласие на фирма “Ай ЕС Пи Дигитален Дизайн” ООД е строго забранено.
Коментари и Въпроси