План на първи етаж

Проект на къща в с. Панчарево
| Етажи | Нето | Бруто |
|---|---|---|
| Първи етаж | 95.89 кв.м. | 112.26 кв.м. |
| Покрит вход/веранда | 11.29 кв.м. | |
| Втори етаж | 95.34 кв.м. | 114.86 кв.м. |
| Общо: | 191.23 кв.м. | 238.41 кв.м. |










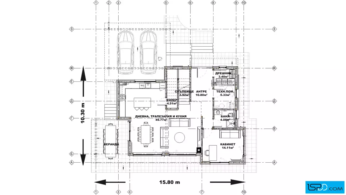
Този проект в Панчарево представя съвременна двуетажна къща, проектирана за балансиран и спокоен живот близо до природата. Дневната зона на първия етаж е просторно отворено пространство, което обединява хол, трапезария и кухня в светла и хармонична среда. Големите стъклени витрини осигуряват плавен преход към покритата веранда, превръщайки я в естествено разширение на дома за моменти на открито. На това ниво е разположен самостоятелен кабинет, който предлага перфектната тиха зона за работа от дома или концентрация. Функционалното разпределение на първия етаж включва още антре, практичен килер към кухнята, техническо помещение и баня. За автомобилите е предвидено удобно паркиране непосредствено до входа на къщата.
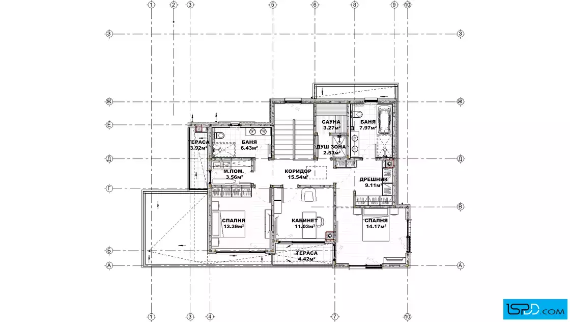
Вторият етаж е посветен на личната зона и включва две уютни спални, осигуряващи уединение за членовете на семейството, като родителската спалня разполага със собствен дрешник и баня. На това ниво се намира и втора лайфстайл зона – допълнителен кабинет с излаз към тераса, подходящ за хоби или творчески занимания. Специален акцент в проекта е зоната за релакс на горния етаж, разполагаща със собствена сауна и душ зона за ежедневна грижа за тонуса.
Архитектурното решение залага на модерни материали и чисти обеми, които вписват къщата естествено в околната среда. Това е дом, в който всяко пространство е организирано с мисъл за комфорта, свободата и индивидуалните нужди на модерното семейство.
Подробен 3D модел на сградата, който изяснява формата и функцията в пълнота още в етапа на проектиране
Бързина на проектирането без компромис с качеството
Анализ на различни варианти и опции и визуализирането им още в начален етап
Функционални планове
Модерен архитектурен софтуер, който минимизира възможните грешки

Визуализациите са илюстративни
Представените изображения са компютърно генерирани фотореалистични образи на сградата, които показват идеята на архитекта. Те визуализират една от многото възможности за завършване на фасадата на сградата. Тяхната основна цел е да изобразят къщата в околната среда по възможно най-реалистичния начин, за да може обитателите да възприемат сградата още преди тя да бъде построена. Цветовете и текстурите на реално изпълнената сграда може да се различават от компютърните изображения.
Фасадните материали могат да бъдат променяни
Визуализациите изобразяват идеята на архитекта и неговото желание да постигане завършен и естетичен образ използвайки конкретни материали по фасадата. Въпреки това, красотата на сградата е строго субективна и затова външната визия може да бъде редактирана според желанията и предпочитанията на възложителите. Всички цветове и материали могат да бъдат променяни, заменяни или премахнати според конкретните нужди.
Всички планове и изображения са предмет на авторско право
Представените визуализации и планове са авторски продукт и плод на архитектурния труд на екипа проектанти на “Ай ЕС Пи Дигитален Дизайн” ООД. Те са изключителна интелектуална собственост на фирмата. На основание член 35 от Закона за авторското право и сродните му права използването на което и да е изображение за търговски, маркетингови и други цели, без изричното писмено съгласие на фирма “Ай ЕС Пи Дигитален Дизайн” ООД е строго забранено.
Коментари и Въпроси