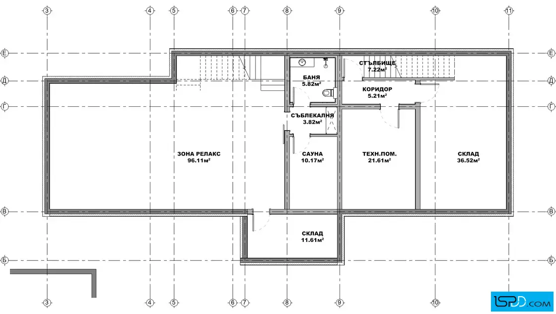
План на подземен етаж

Проект на къща в с. Побит камък
| Етажи | Нето | Бруто |
|---|---|---|
| Подземен етаж | 198.09 кв.м. | 239.44 кв.м. |
| Първи етаж | 198.86 кв.м. | 239.44 кв.м. |
| Покрит вход/веранда | 134.14 кв.м. | |
| Втори етаж | 343.39 кв.м. | 391.59 кв.м. |
| Общо: | 740.34 кв.м. | 1004.61 кв.м. |















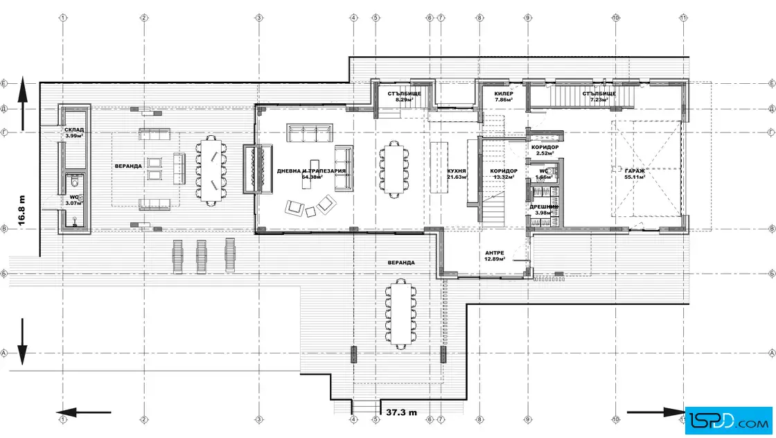
Този проект в село Побит камък представя модерна и мащабна семейна къща, проектирана за висок стандарт на живот и пълноценна почивка. Първият етаж е организиран около впечатляваща дневна зона, която обединява хол и трапезария в едно светло, отворено пространство. Кухнята е просторна и функционално отделена, допълнена от удобен килер за максимален ред в домакинството. Огромни остъклявания свързват интериора с обширна веранда, превръщайки я в идеалната сцена за летни вечери и семейни събирания на открито. Нивото разполага още с просторно антре, дрешник и склад, осигуряващи плавен преход към жилищните площи. За пълно удобство е предвиден голям гараж с директна топла връзка към вътрешността на къщата.
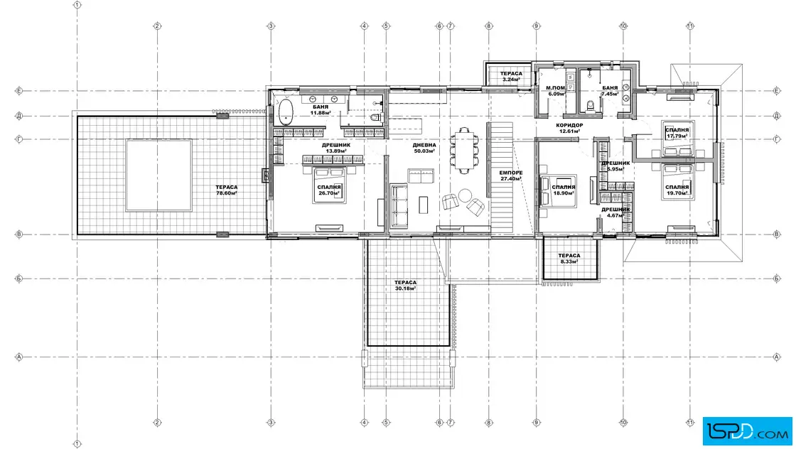
Вторият етаж е посветен изцяло на уединението и включва четири самостоятелни спални. Родителската стая е оформена като мастър суит със собствен мащабен дрешник и баня, а останалите три спални споделят допълнителна баня и перално помещение. На това ниво са разположени и няколко тераси, като най-голямата от тях е почти 80 кв.м и предлага уникални възможности за панорамен релакс.
Истинският лайфстайл акцент е подземното ниво, където е разположена зона за релакс и собствена сауна за СПА преживяване у дома. Архитектурата е съвременна, с изчистени линии и големи витрини, които канят светлината във всяко помещение. Това е дом, който съчетава лукса на личното пространство с уюта на споделените моменти сред природата.
Подробен 3D модел на сградата, който изяснява формата и функцията в пълнота още в етапа на проектиране
Бързина на проектирането без компромис с качеството
Анализ на различни варианти и опции и визуализирането им още в начален етап
Функционални планове
Модерен архитектурен софтуер, който минимизира възможните грешки

Визуализациите са илюстративни
Представените изображения са компютърно генерирани фотореалистични образи на сградата, които показват идеята на архитекта. Те визуализират една от многото възможности за завършване на фасадата на сградата. Тяхната основна цел е да изобразят къщата в околната среда по възможно най-реалистичния начин, за да може обитателите да възприемат сградата още преди тя да бъде построена. Цветовете и текстурите на реално изпълнената сграда може да се различават от компютърните изображения.
Фасадните материали могат да бъдат променяни
Визуализациите изобразяват идеята на архитекта и неговото желание да постигане завършен и естетичен образ използвайки конкретни материали по фасадата. Въпреки това, красотата на сградата е строго субективна и затова външната визия може да бъде редактирана според желанията и предпочитанията на възложителите. Всички цветове и материали могат да бъдат променяни, заменяни или премахнати според конкретните нужди.
Всички планове и изображения са предмет на авторско право
Представените визуализации и планове са авторски продукт и плод на архитектурния труд на екипа проектанти на “Ай ЕС Пи Дигитален Дизайн” ООД. Те са изключителна интелектуална собственост на фирмата. На основание член 35 от Закона за авторското право и сродните му права използването на което и да е изображение за търговски, маркетингови и други цели, без изричното писмено съгласие на фирма “Ай ЕС Пи Дигитален Дизайн” ООД е строго забранено.
Коментари и Въпроси