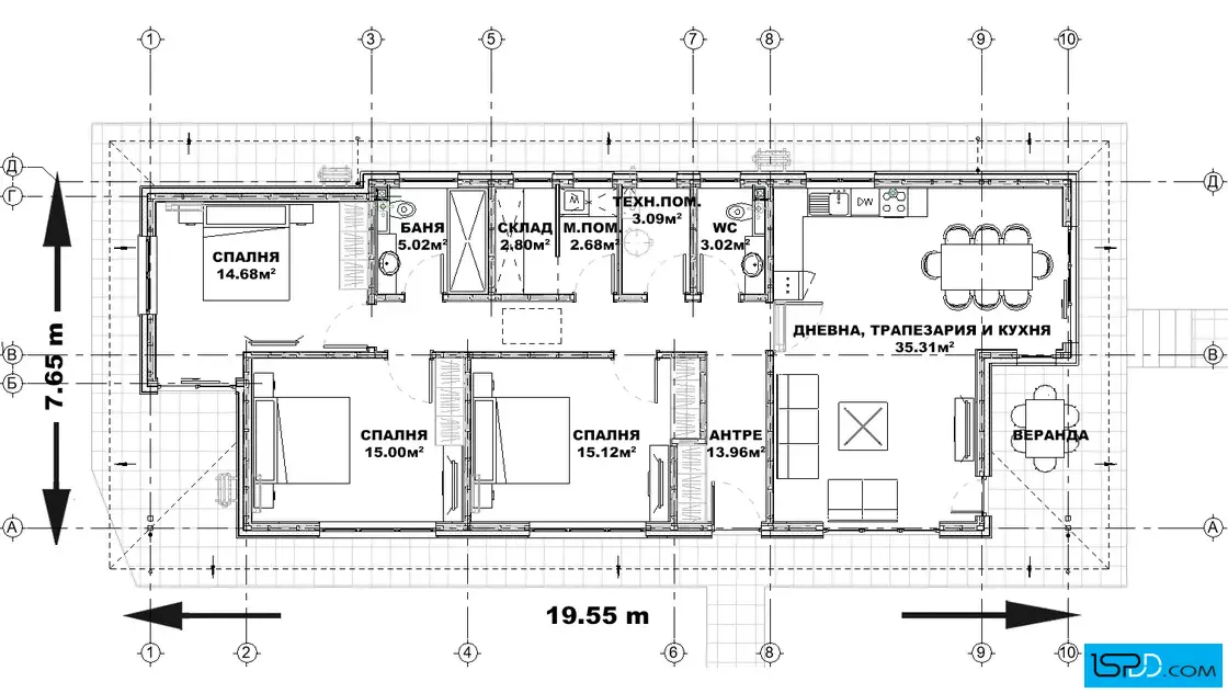
План на първи етаж

Проект на къща в с. Белчин
| Етажи | Нето | Бруто |
|---|---|---|
| Първи етаж | 110.68 кв.м. | 132.45 кв.м. |
| Покрит вход/веранда | 11.31 кв.м. | |
| Общо: | 110.68 кв.м. | 143.76 кв.м. |








Този проект в село Белчин представя модерна едноетажна къща, проектирана за максимално удобство и спокойствие в близост до природата. Сърцето на дома е просторна дневна зона, която обединява кухня, трапезария и хол в едно изключително светло и отворено пространство. Големите витрини осигуряват директен излаз към уютна покрита веранда, превръщайки я в естествено продължение на интериора за споделени моменти на открито.
Всички три спални са разположени на първия етаж, което осигурява лесен достъп и комфорт без необходимост от стълби. Помещенията за сън са с отлични размери и са разпределени така, че да гарантират тишина и уединение за всеки член на семейството. Функционалният план включва още широко входно антре, самостоятелно техническо помещение и склад, които поддържат реда в дома. За максимално ежедневено удобство е предвидено и отделно мокро помещение, разположено в обслужващата зона. Жилището разполага с голяма фамилна баня и допълнителна самостоятелна тоалетна, разположени удобно спрямо спалните и дневната част.
Архитектурата залага на изчистени линии и широко остъкляване, което позволява на естествената светлина да навлиза свободно във всяко кътче. Това е дом, в който практичността и модерната естетика работят заедно за създаването на хармонична семейна среда.
Подробен 3D модел на сградата, който изяснява формата и функцията в пълнота още в етапа на проектиране
Бързина на проектирането без компромис с качеството
Анализ на различни варианти и опции и визуализирането им още в начален етап
Функционални планове
Модерен архитектурен софтуер, който минимизира възможните грешки

Визуализациите са илюстративни
Представените изображения са компютърно генерирани фотореалистични образи на сградата, които показват идеята на архитекта. Те визуализират една от многото възможности за завършване на фасадата на сградата. Тяхната основна цел е да изобразят къщата в околната среда по възможно най-реалистичния начин, за да може обитателите да възприемат сградата още преди тя да бъде построена. Цветовете и текстурите на реално изпълнената сграда може да се различават от компютърните изображения.
Фасадните материали могат да бъдат променяни
Визуализациите изобразяват идеята на архитекта и неговото желание да постигане завършен и естетичен образ използвайки конкретни материали по фасадата. Въпреки това, красотата на сградата е строго субективна и затова външната визия може да бъде редактирана според желанията и предпочитанията на възложителите. Всички цветове и материали могат да бъдат променяни, заменяни или премахнати според конкретните нужди.
Всички планове и изображения са предмет на авторско право
Представените визуализации и планове са авторски продукт и плод на архитектурния труд на екипа проектанти на “Ай ЕС Пи Дигитален Дизайн” ООД. Те са изключителна интелектуална собственост на фирмата. На основание член 35 от Закона за авторското право и сродните му права използването на което и да е изображение за търговски, маркетингови и други цели, без изричното писмено съгласие на фирма “Ай ЕС Пи Дигитален Дизайн” ООД е строго забранено.
Коментари и Въпроси